Worms:
Das klassische Einfamilienhaus mit offener Bauweise
Objekt-Nr.: PKK039DE15

Aktion Design 15

Walkaround 45

Ansicht Garten

Ansicht Eingang

Ansicht Esszimmer

Ansicht Esszimmer/Küche

Ansicht Wohnzimmer

Erdgeschoss

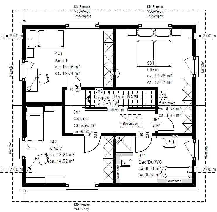
Dachgeschoss









Preis:
Preis auf Anfrage
Wohnfläche ca.:
155 m²
Zimmeranzahl:
5
Bei Design 15 harmonieren klassische Architektur und moderne Innenraumgestaltung auf ideale Weise. Mit 155 m², verteilt auf zwei Etagen, wird ein gehobener Wohnkomfort geboten. Der großzügige Grundriss, der hohe Lichteinfall und die offene Bauweise schaffen eine einzigartige Wohnatmosphäre. Ein Hauswirtschaftsraum, ein Arbeitszimmer und ein Duschbad ergänzen das Raumangebot. Die zentral gelegene, halbgewendelte Treppe ist in den Wohnbereich integriert und sorgt für eine räumliche und optische Öffnung der Etage. Die vier Räume im Obergeschoss bieten zusätzlichen Spielraum für Gestaltung und Nutzung.
► Ausgewiesener Kaufpreis gilt nur für das Haus. Die Kosten für das Baugrundstück, die Nebenkosten des Grundstückskaufs und die Nebenkosten für Erdbaumaßnahmen und Außenanlagen sind nicht im Preis enthalten.
Haustyp: Einfamilienhaus
Etagenanzahl: 2
Anzahl Schlafzimmer: 3
Anzahl Badezimmer: 1
Gäste-WC: ja
Qualität der Ausstattung: gehoben
Bauphase: Haus in Planung (projektiert)
Zustand: Haus in Planung (projektiert)
Das könnte Ihnen auch gefallen
Klein, aber oho: Bis ins letzte Detail liebevoll durchdacht!
OKAL-Verkaufsleitung Mitte-West
Herr Klaus-Peter Kunzelmann
Xaver-Fuhr-Str.111
68163 Mannheim
Mobil: +49 172 6062565
67550 Worms
Rheinland-Pfalz


































