Nidda:
TRAUMHAUS AUF IHREM GRUNDSTÜCK, MODERNES WOHNHAUS MIT ELEGANTEM WALMDACH
Objekt-Nr.: 10521

Ansicht Garten

Ansicht Garten

Ansicht Garten

Ansicht Garten

Ansicht Garten

Ansicht Eingang


Ansicht Eingang


Grundriss Erdgeschoss

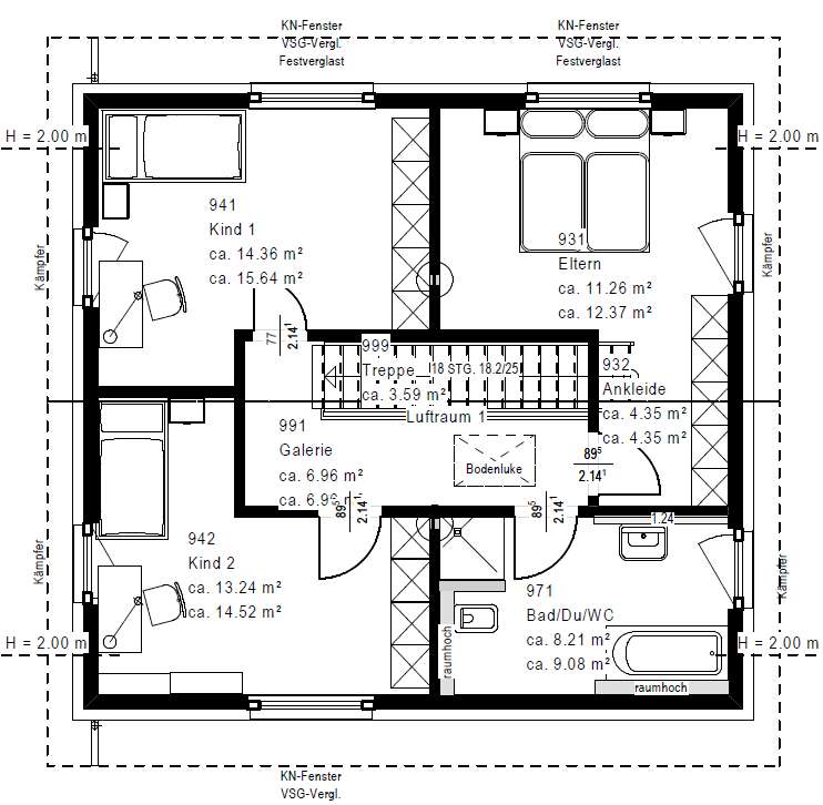
Grundriss Obergeschoss











Preis:
386.020 €
Wohnfläche ca.:
154,89 m²
Grundstück ca.:
300 m²
Zimmeranzahl:
4
Ein Walmdach, das verkörpert Eleganz und vermittelt einen edlen, fast schon herrschaftlichen Eindruck. So auch bei unserer Stadtvilla 10 mit Walmdach. Das große Plus: Dank dieser Dachform gibt es im Obergeschoss keine Dachschrägen und damit zahlreiche Möglichkeiten zum Positionieren der Möbel. Doch diese Stadtvilla kann noch mit vielen weiteren kleinen und großen Ausstattungs- und Grundrissdetails punkten. So gibt es im ca. 78 Quadratmeter großen Erdgeschoss eine räumliche Zweiteilung: die Zimmer zum Entspannen und Zusammenkommen auf der Gartenseite, die funktionellen Räume auf der, der Straße zugewandten, Seite. Konkret bedeutet das: vom großen Wohn-Ess-Koch-Bereich ist der direkte Zugang auf die Terrasse und damit ins Grüne möglich. Büro, Hauswirtschaftsraum sowie Gäste-WC sind unterdessen gegenüberliegend und unmittelbar aus der Diele zugänglich. Im Obergeschoss befinden sich neben dem Reich der Eltern zwei identisch große Kinderzimmer sowie ein geräumiges Bad mit Wanne, Dusche und WC.
Haustyp: Einfamilienhaus
Etagenanzahl: 2
Anzahl Schlafzimmer: 3
Anzahl Badezimmer: 1
Gäste-WC: ja
Keller: nein
Qualität der Ausstattung: gehoben
Bauphase: Haus in Planung (projektiert)
Zustand: Haus in Planung (projektiert)
Das könnte Ihnen auch gefallen
EinPFALZreichtum bei Ihrem Bauplan
Auf Ihrem Grundstück – Ihr Traumhaus von OKAL
modernes, kompaktes Raumkonzept
OKAL-Verkaufsleitung Mitte-West
Herr Naveen Kumar-Khanna
Eichendorffanlage 3
63486 Bruchköbel
Mobil: +49 173 5707462































