Münzenberg:
TRAUMHAUS AUF IHREM GRUNSTÜCK, EINZUGSFERTIG.BAUHAUS-ARCHITEKTUR IN OKAL-DESIGN
Objekt-Nr.: 10858

Ansicht Garten

Ansicht Garten

Ansicht Garten

Ansicht Garten

Ansicht Eingang

Ansicht Eingang

Ansicht Eingang

Ansicht Eingang

Ansicht Esszimmer

Ansicht Küche/Esszimmer

Ansicht Flur

Ansicht Wohnzimmer

Ansicht Badezimmer

Ansicht Badezimmer

Ansicht Schlafzimmer

Grundriss Erdgeschoss

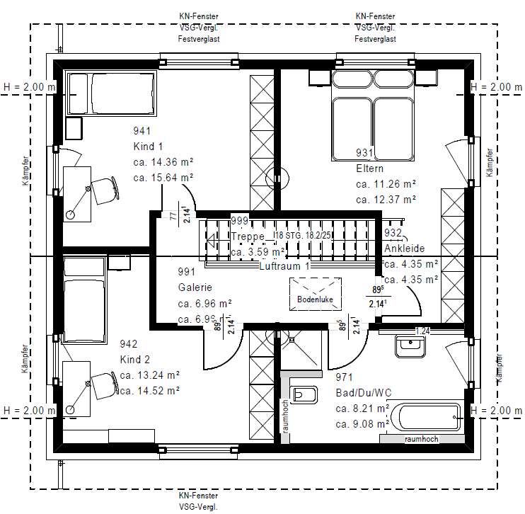
Grundriss Obergeschoss

















Preis:
548.388 €
Wohnfläche ca.:
183,12 m²
Grundstück ca.:
300 m²
Zimmeranzahl:
8
Wer sich dem Purismus verschrieben hat, wird dem Kubus mit Flachdach kaum widerstehen können. Als Hommage an die Bauhausära vereint die Stadtvilla schnörkellose Ästhetik mit kompromissloser Funktionalität. Die reduzierte Architektur wird durch den Versatz und die Signalkraft der bauhaustypischen Farben bewusst unterbrochen. Die klare Formgebung findet sich auch im Innenbereich wieder. Der große Wohn-, Koch- und Essbereich ist offen und hell, nur ein Wandelement dient der optischen Unterteilung. Im Obergeschoss befindet sich der äußerst großzügige Elternbereich. Doch auch für Kinder, Büro und Gäste ist reichlich Platz im Black Label 13.
Haustyp: Einfamilienhaus
Etagenanzahl: 2
Anzahl Schlafzimmer: 3
Anzahl Badezimmer: 2
Gäste-WC: ja
Keller: nein
Qualität der Ausstattung: gehoben
Bauphase: Haus in Planung (projektiert)
Zustand: Haus in Planung (projektiert)
Das könnte Ihnen auch gefallen
modernes, kompaktes Raumkonzept
OKAL-Verkaufsleitung Mitte-West
Herr Naveen Kumar-Khanna
Eichendorffanlage 3
63486 Bruchköbel
Mobil: +49 173 5707462







































