Mayen:
Das Atrium Haus - so außergewöhnlich wie Sie!
Objekt-Nr.: 11207

Außenansicht

Außenansicht

Außenansicht

Atrium

Küche

Essbereich

Küche

Küche

Küche

Wohnzimmer

Wohnzimmer

Bad 1

Ankleide

Schlafzimmer

Schlafzimmer

Bad 2

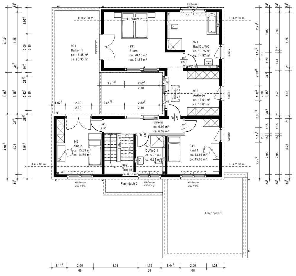
Grundriss - EG

Grundriss - DG


















Preis:
964.800 €
Wohnfläche ca.:
240 m²
Grundstück ca.:
1.170 m²
Zimmeranzahl:
5
Ein gänzlich neues Wohngefühl - dieses außergewöhnliche Objekt überzeugt durch ein helles, offenes Wohnkonzept. Hier erleben Sie gewaltige Formate von graziler Gestalt.
Von außen besticht die zweistöckige Immobilie durch eine klare Formensprache und bietet innen viel Raum zur Entfaltung.
Das Herzstück bildet das lichtdurchflutete und windgeschützte Atrium, welches einen zusätzlichen "Freiluft-Wohnraum" und beeindruckende Sichtachsen schafft.
Mithilfe der "Minimal Windows", bei denen die ebenerdigen Glasscheiben von einem kaum sichtbaren Rahmen umrandet sind, entstehen schwellenlose Zugänge zum Atrium. Sind die Fenster geöffnet, wird der Wohnraum elegant nach außen erweitert.
Auf einer Gesamtfläche von ca. 240 qm, sind der Umsetzung Ihrer Vorstellungen vom perfekten Wohnen keine Grenzen gesetzt!
Die Abbildungen dieses Planungsvorschlags dienen Ihnen zur Inspiration. Sie können Grundriss und Architektur-Extras individuell verändern.
Haustyp: Villa
Etagenanzahl: 2
Provisionspflichtig: nein
Anzahl Schlafzimmer: 3
Anzahl Badezimmer: 1
Gäste-WC: ja
Bauphase: Haus in Planung (projektiert)
Verfügbar ab: 2025
Das könnte Ihnen auch gefallen
MAXIMALER WOHNKOMFORT AUF EINER EBENE

OKAL-Verkaufsleitung Mitte-West
Herr Karl-Heinz Thelen
Elisabethstr.7
56564 Neuwied
Mobil: +49 171 1416371
56727 Mayen
Mayen-Koblenz
Rheinland-Pfalz































