Hadamar:
AKTION !! Ihr Traumhaus – gebaut auf Ihrem Grundstück oder mit unserem Grundstücksservice - EINZUGSFERTIG
Objekt-Nr.: 11519


EINZIEHEN statt Ausbauen

Ansicht Garten Satteldach

Ansicht Eingang Satteldach

Ansicht Wohnzimmer

Ansicht Küche und Essbereich

Ansicht Küche

Grundriss Erdgeschoss

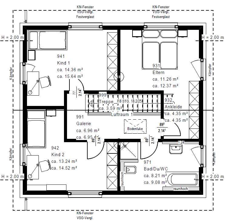
Grundriss Dachgeschoss









Preis:
393.900 €
Wohnfläche ca.:
131,04 m²
Grundstück ca.:
400 m²
Zimmeranzahl:
3
Schlichte Eleganz und ein durchdachtes Raumkonzept verleihen diesem Einfamilienhaus seine besondere Ausstrahlung. Die klare Linienführung der Architektur wird von einer zweifarbigen Fassadengestaltung betont, die Tiefe und Charakter schenkt. Im Inneren setzt sich diese Klarheit fort: Das Erdgeschoss öffnet sich zu einem lichtdurchfluteten Wohn-, Ess- und Kochbereich, der fließend in den Garten übergeht - ein Ort für lebendige Begegnungen und stille Augenblicke. Hauswirtschaftsraum und Gäste-WC sind dezent abgetrennt und sorgen für praktische Funktionalität. Von der großzügigen Diele führt eine Treppe ins Dachgeschoss, wo der Raum optimal genutzt ist: Ein helles Kinderzimmer, ein Elternschlafzimmer, ein Büro und ein komfortables Bad mit Wanne, Dusche und WC schaffen ein harmonisches Wohnumfeld. Auf rund 130 m² entsteht so ein Zuhause, das beständig Freude schenkt und Generationen verbindet.
Gegen Aufpreis auch mit Walmdach verfügbar.
Haustyp: Einfamilienhaus
Etagenanzahl: 2
Anzahl Schlafzimmer: 2
Anzahl Badezimmer: 1
Gäste-WC: ja
Qualität der Ausstattung: gehoben
Baujahr: 2026
Bauphase: Haus in Planung (projektiert)
Zustand: Haus in Planung (projektiert)
Befeuerungsart: Wärmepumpe
Energietyp: Neubaustandard
Energieausweistyp: Bedarfsausweis
Energieeffizienz-Klasse: A+
Baujahr laut Energieausweis: 2026
Wir weisen auf unsere Allgemeinen Geschäftsbedingungen hin. Durch weitere Inanspruchnahme unserer Leistungen erklären Sie diese zur Kenntnis genommen zur haben und Ihr Einverständnis.
Das könnte Ihnen auch gefallen
geräumiges EFH für schmale Grundstücke
Neues Haus? Ja! KLARE LINIEN, OFFENES LEBEN
Geförderter Neubau (KFN Ready)

OKAL-Verkaufsleitung Mitte-West
Herr Ralf Skala
Alemannenstr.15
56299 Ochtendung
Mobil: +49 151 22724315




































