Vendersheim:
OKAL Sonderedition PUR - Einziehen statt Ausbauen! - Auf Ihrem Grundstück oder mit unserem Grundstücksservice
Objekt-Nr.: 11640
















Preis:
442.900 €
Wohnfläche ca.:
148 m²
Grundstück ca.:
400 m²
Zimmeranzahl:
5
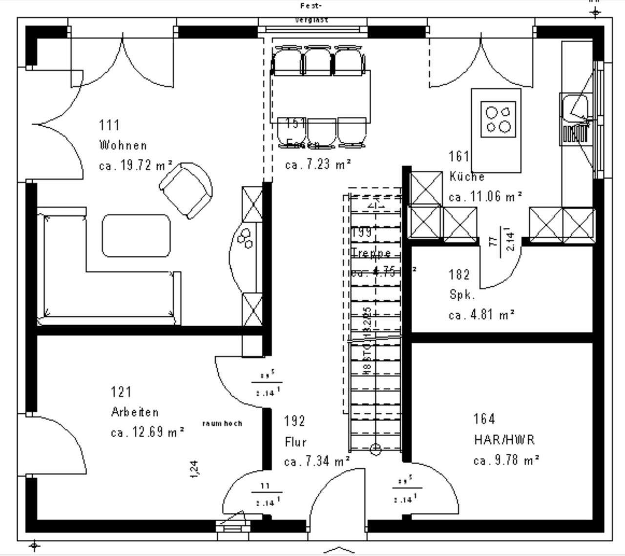
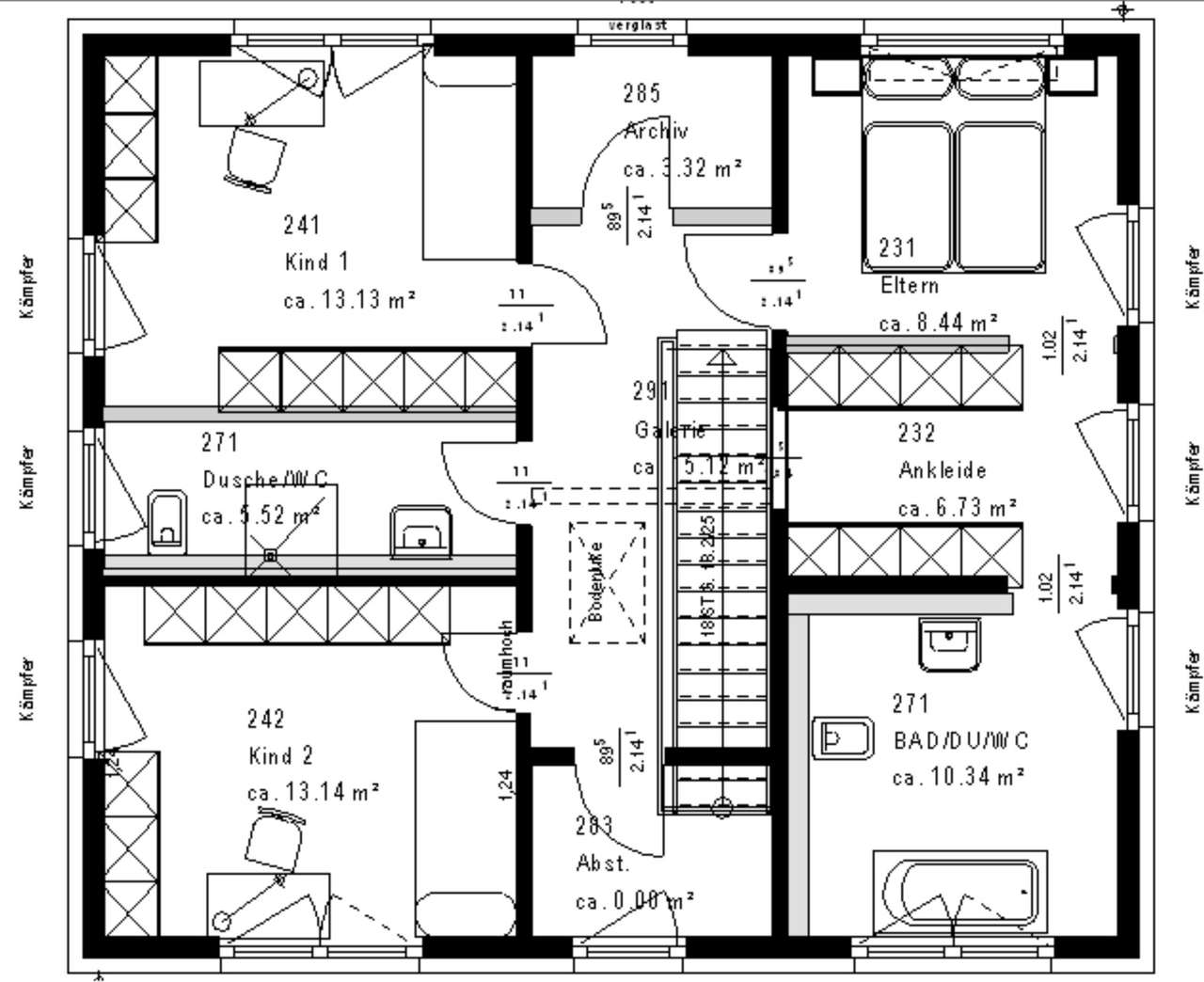
Auf zwei Ebenen vereint dieses Haus durchdachte Planung mit markantem Design. Die Fassade spielt mit Symmetrien und verleiht dem Baukörper eine besondere Präsenz, während der überdachte Eingang einen geschützten, einladenden Empfang schafft. Im Erdgeschoss öffnet sich die Diele zu einer klar gegliederten Raumfolge: Hauswirtschaftsraum und Gäste-WC sind dezent platziert, ein separates Büro bietet Rückzug für konzentriertes Arbeiten. Herzstück ist der offene Wohn-, Ess und Kochbereich, in dem großzügige Flächen und fließende Übergänge das Miteinander zum Erlebnis machen. Im Dachgeschoss sorgt die clevere Grundrissgestaltung für große Räume und einen bewusst klein gehaltenen Flur. Zwei helle Kinderzimmer, ein Elternschlafzimmer und ein komfortables Bad mit Wanne und Dusche schaffen Platz für alle Lebensphasen. Mit 149 m² bietet dieses Haus Raumqualität, die inspiriert - funktional, großzügig und im Detail präzise gestaltet.
Der angegebene Preis bezieht sich nur auf das projektierte Wohnhaus in der Ausbauvariante einzugsfertig, ohne Baugrundstück.
Die angegebene Grundstücksgröße gibt lediglich Auskunft über die ungefähre Mindestgröße des Baugrundstücks, die erforderlich ist, um das angebotene Haus zu realisieren. Abweichungen sind möglich, je nach Schnitt und Lage des Baugrundstücks.
Anzahl Schlafzimmer: 3
Anzahl Badezimmer: 1
Bauphase: Haus in Planung (projektiert)
Das könnte Ihnen auch gefallen
moderne OKAL Stadtvilla zum Top Preis
OKAL-Verkaufsleitung Mitte-West
Herr Carsten Metz
Xaver-Fuhr-Str.111
68163 Mannheim
Mobil: +49 175 9571152
55578 Vendersheim
Alzey-Worms
Rheinland-Pfalz






































