Albig:
OKAL Sonderedition PUR - Einziehen statt Ausbauen! - Auf Ihrem Grundstück oder mit unserem Grundstücksservice
Objekt-Nr.: 11652


















Preis:
419.900 €
Wohnfläche ca.:
151 m²
Grundstück ca.:
400 m²
Zimmeranzahl:
5
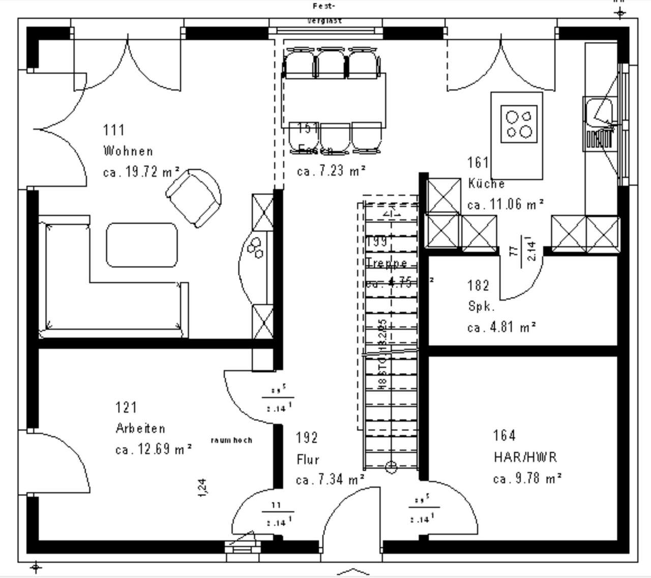
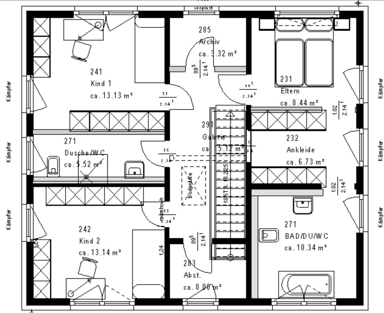
Das Herz dieses Hauses schlägt im offenen Küchen-, Wohn- und Essbereich, in dem Kochen, Genießen und Wohnen fließend ineinander übergehen und dennoch harmonisch gegliedert bleiben. Die Küche schließt praktisch an den Hauswirtschaftsraum an, kurze Wege erleichtern den Alltag. Ein separates Büro im Erdgeschoss bietet Raum für konzentriertes Arbeiten, Gäste-WC und Diele fügen sich unaufdringlich in die Grundrissstruktur ein. Im Dachgeschoss verbinden sich Funktion und Großzügigkeit: Zwei lichtdurchflutete Kinderzimmer, ein Elternschlafzimmer und ein komfortables Bad gruppieren sich um eine ästhetische Galerie, die dem Geschoss Leichtigkeit verleiht und den Blick ins Haus öffnet. Von außen setzt das Haus ein klares architektonisches Statement. Der moderne Silhouettenüberstand sorgt für Tiefe, während Symmetrien und feine Fassadenabsetzungen für visuelle Spannung sorgen. Der überdachte Hauseingang empfängt Bewohner und Gäste gleichermaßen einladend - ein Haus, das innen wie außen mit Anspruch geplant ist.
Der angegebene Preis bezieht sich nur auf das projektierte Wohnhaus in der Ausbauvariante einzugsfertig, ohne Baugrundstück.
Die angegebene Grundstücksgröße gibt lediglich Auskunft über die ungefähre Mindestgröße des Baugrundstücks, die erforderlich ist, um das angebotene Haus zu realisieren. Abweichungen sind möglich, je nach Schnitt und Lage des Baugrundstücks.
Anzahl Schlafzimmer: 3
Anzahl Badezimmer: 1
Bauphase: Haus in Planung (projektiert)
Das könnte Ihnen auch gefallen
ALLER GUTEN DINGE SIND ZWEI
moderne OKAL Stadtvilla zum Top Preis
OKAL-Verkaufsleitung Mitte-West
Herr Carsten Metz
Xaver-Fuhr-Str.111
68163 Mannheim
Mobil: +49 175 9571152
55234 Albig
Alzey-Worms
Rheinland-Pfalz





























































