Hornbach:
ANTIKE TRIFFT AUF MODERNE
Objekt-Nr.: NL 20092025-4

Ansicht Eingang

Ansicht Esszimmer

Ansicht Sitzfenster

Ansicht Küche

Ansicht Küche

Ansicht Wohnzimmer

Ansicht Badezimmer

Grundriss Erdgeschoss

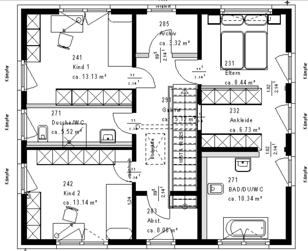
Grundriss Dachgeschoss









Preis:
836.000 €
Wohnfläche ca.:
267 m²
Grundstück ca.:
1.200 m²
Zimmeranzahl:
5
Ausgezeichnet mit dem German Design Award, steht das "Musterhaus Bad Vilbel" für inspirierende Architektur, optimale Grundstücksnutzung und ein Höchstmaß an Energieeffizienz. An das großzügige Hauptgebäude mit Satteldach schließt sich im Erdgeschoss der kubistische Anbau an und bietet vielfältige Nutzungsmöglichkeiten. Durch die Teilung der Dachflächen entsteht das Herzstück des Hauses: das Atrium, in Anlehnung an die römische Architektur. Bodentiefe Fenster und Schiebetüren verbinden Drinnen mit Draußen und sorgen für reichlich Lichteinfall. Hier trifft man sich!…
Der Begriff Atrium geht übrigens vermutlich auf das lateinische Wort ater zurück. Das bedeutet so viel wie rauchgeschwärzt. Das scheint deswegen logisch, weil der offene Raum oft zum Kochen genutzt wurde - damals noch mit einer offenen Feuerstelle als Herd. Der aufsteigende Raum sorgte dafür, dass sich die Decke schwarz färbte. Das Atrium stellte bereits im alten Rom ein Treffpunkt für die ganze Familie dar. Zentral, also in der Mitte eines Hauses gelegen, mit ausreichend Lichteinfall ausgestattet und von nahezu allen Räumen zugänglich, war es ein perfekter Ort für Zusammenkünfte. Die Grenzen zwischen Innen und Außen waren hier in der Regel fließend. Dadurch wirkten auch die Innenräume noch größer, noch imposanter.
Vor diesem Hintergrund verwundert es nicht, dass OKAL diese architektonische Finesse für sein Musterhaus Bad Vilbel aufgegriffen hat. Die Architekten zeigen hier auf eindrucksvolle Weise, wie sich klassische und moderne Wohnelemente zu einem homogenen Ganzen verschmelzen lassen. Das Artrium fügt sich perfekt ein. Es harmoniert ideal mit dem puristischen Kubus, den vielen Fensterfronten und der insgesamt lichtdurchfluteten Innenraumgestaltung. Und trotz des offenen Charakters unseres Musterhaus Bad Vilbel bleibt die Privatsphäre gewährt. Sie schaffen sich hier Ihren ganz persönlichen, ganz besonderen Rückzugsraum - egal, ob auf dem Land oder in der Großstadt.
Haustyp: Einfamilienhaus
Etagenanzahl: 2
Anzahl Schlafzimmer: 3
Anzahl Badezimmer: 2
Terrasse: 1
Gäste-WC: ja
Anzahl der Parkflächen: 1 x Garage
Qualität der Ausstattung: gehoben
Bauphase: Haus in Planung (projektiert)
Zustand: Haus in Planung (projektiert)
Energietyp: Neubaustandard
Energieausweistyp: Energieausweis liegt zur Besichtigung vor
Das könnte Ihnen auch gefallen
































