Schweix:
[FRANCE] ⇽ OKAL baut in Frankreich
Objekt-Nr.: NL 11092025-138

Ansicht Garten

Ansicht Garten

Ansicht Garten

Ansicht Garten

Ansicht Eingang

Ansicht Eingang

Ansicht Eingang

Ansicht Eingang

Ansicht Esszimmer

Ansicht Küche/Esszimmer

Ansicht Flur

Ansicht Wohnzimmer

Ansicht Badezimmer

Ansicht Badezimmer

Ansicht Schlafzimmer

Grundriss Erdgeschoss

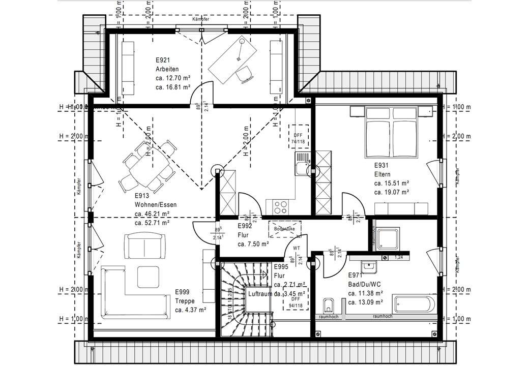
Grundriss Obergeschoss

















Preis:
548.060 €
Wohnfläche ca.:
183,12 m²
Grundstück ca.:
888 m²
Zimmeranzahl:
8
Wer dem Purismus verfallen ist, wird dem Flachdachkubus kaum widerstehen können. Diese Stadtvilla ist eine Hommage an die Bauhaus-Ära und kombiniert schlichte Ästhetik mit unerschütterlicher Funktionalität. Die reduzierte Architektur wird durch den Versatz und die kräftigen Farben, die für das Bauhaus typisch sind, bewusst akzentuiert. Die klare Formensprache setzt sich auch im Innenraum fort. Der großzügige Wohn-, Koch- und Essbereich ist offen und lichtdurchflutet, lediglich ein Wandelement sorgt für eine optische Trennung. Im Obergeschoss erwartet Sie ein äußerst geräumiger Elternbereich, während auch ausreichend Platz für Kinder, ein Büro und Gäste im Black Label 13 vorhanden ist.
Haustyp: Einfamilienhaus
Etagenanzahl: 2
Anzahl Schlafzimmer: 3
Anzahl Badezimmer: 2
Gäste-WC: ja
Keller: nein
Qualität der Ausstattung: gehoben
Bauphase: Haus in Planung (projektiert)
Zustand: Haus in Planung (projektiert)
Das könnte Ihnen auch gefallen
Mehrgenerationen Wohnen mit viel Freiraum














































