Hilst:
[FRANCE] OKAL baut in Frankreich
Objekt-Nr.: NL 11092025-104

Ansicht Garten

Ansicht Eingang

Ansicht Esszimmer

Ansicht Esszimmer/Küche

Ansicht Wohnzimmer

Grundriss Erdgeschoss

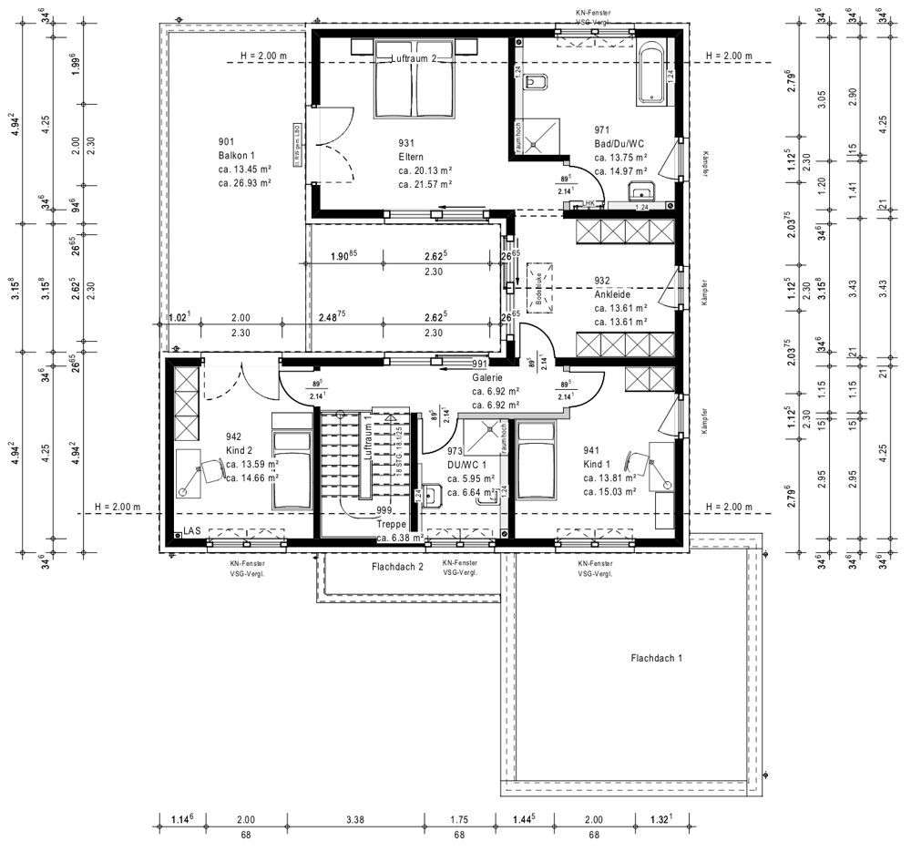
Grundriss Dachgeschoss







Preis:
367.156 €
Wohnfläche ca.:
155 m²
Grundstück ca.:
888 m²
Zimmeranzahl:
5
Bei Design 15 harmonieren klassische Architektur und moderne Innenraumgestaltung auf ideale Weise. Mit 155 m², verteilt auf zwei Etagen, wird ein gehobener Wohnkomfort geboten. Der großzügige Grundriss, der hohe Lichteinfall und die offene Bauweise schaffen eine einzigartige Wohnatmosphäre. Ein Hauswirtschaftsraum, ein Arbeitszimmer und ein Duschbad ergänzen das Raumangebot. Die zentral gelegene, halbgewendelte Treppe ist in den Wohnbereich integriert und sorgt für eine räumliche und optische Öffnung der Etage. Die vier Räume im Obergeschoss bieten zusätzlichen Spielraum für Gestaltung und Nutzung.
Haustyp: Einfamilienhaus
Etagenanzahl: 2
Anzahl Schlafzimmer: 3
Anzahl Badezimmer: 1
Gäste-WC: ja
Qualität der Ausstattung: gehoben
Bauphase: Haus in Planung (projektiert)
Zustand: Haus in Planung (projektiert)
Das könnte Ihnen auch gefallen































