Mauschbach:
[FRANCE]
Objekt-Nr.: NL 11092025-69

Ansicht Garten

Ansicht Garten

Ansicht Garten

Ansicht Garten

Ansicht Garten

Ansicht Eingang

Ansicht Eingang

Ansicht Eingang

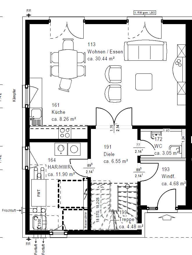
Grundriss Erdgeschoss

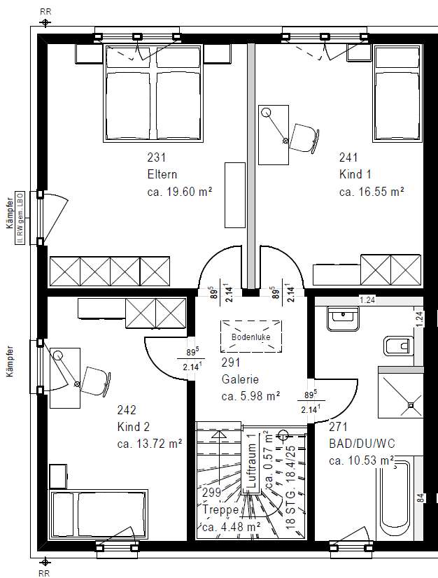
Grundriss Dachgeschoss










Preis:
301.588 €
Wohnfläche ca.:
106 m²
Grundstück ca.:
888 m²
Zimmeranzahl:
5
Schlichte Eleganz gepaart mit einem durchdachten Raumkonzept - das zeichnet das Einfamilienhaus Design 9.2 aus. Die geradlinige Architektur wird noch unterstrichen durch die zweifarbige Fassadengestaltung, die dem Haus eine besondere Note verleiht und sie optisch noch einmal zusätzlich aufwertet. Geradlinig geht es auch im Inneren weiter. Herzstück im Erdgeschoss ist der große und lichtdurchflutete Wohn-Ess-Koch-Bereich mit direktem Zugang zum Garten. Dieser ist räumlich getrennt von Hauswirtschaftsraum und Gäste-WC. Von der geräumigen Diele, in der ausreichend Platz für eine Garderobe ist, führt eine Treppe ins Obergeschoss. Hier wird der Wohnraum perfekt ausgenutzt. Zwei Kinderzimmer, ein Schlafzimmer für die Eltern sowie ein geräumiges Bad mit Wanne, Dusche und WC bieten hier einen idealen Rückzugsort. Auf einer Wohnfläche von rund 107 m² ist hier ein gemütlicher und komfortabler Wohlfühlort für die ganze Familie entstanden.
Haustyp: Einfamilienhaus
Etagenanzahl: 2
Provisionspflichtig: nein
Anzahl Schlafzimmer: 3
Anzahl Badezimmer: 1
Gäste-WC: ja
Qualität der Ausstattung: gehoben
Bauphase: Haus in Planung (projektiert)
Zustand: Haus in Planung (projektiert)
Das könnte Ihnen auch gefallen
EBEN LEBEN


























