Karlshöhe:
KLEIN IN DER FLÄCHE, GROSS IM GEFÜHL - auf Ihrem Bauplatz
Objekt-Nr.: NL 09092025-36

Ansicht Eingang Satteldach

EINZIEHEN statt Ausbauen

Ansicht Garten Walmdach

Ansicht Eingang Walmdach

Ansicht Wohnzimmer

Ansicht Küche und Essbereich

Ansicht Küche

Grundriss Erdgeschoss

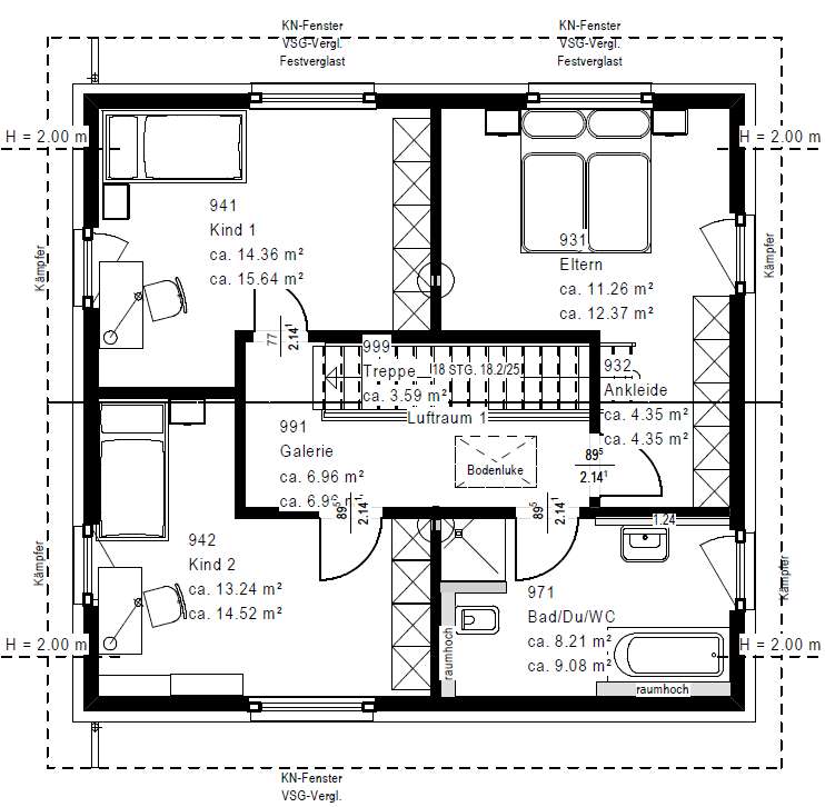
Grundriss Dachgeschoss









Preis:
322.900 €
Wohnfläche ca.:
131 m²
Grundstück ca.:
888 m²
Zimmeranzahl:
3
Schlichte Eleganz und ein durchdachtes Raumkonzept verleihen diesem Einfamilienhaus seine besondere Ausstrahlung. Die klare Linienführung der Architektur wird von einer zweifarbigen Fassadengestaltung betont, die Tiefe und Charakter schenkt. Im Inneren setzt sich diese Klarheit fort: Das Erdgeschoss öffnet sich zu einem lichtdurchfluteten Wohn-, Ess- und Kochbereich, der fließend in den Garten übergeht - ein Ort für lebendige Begegnungen und stille Augenblicke. Hauswirtschaftsraum und Gäste-WC sind dezent abgetrennt und sorgen für praktische Funktionalität. Von der großzügigen Diele führt eine Treppe ins Dachgeschoss, wo der Raum optimal genutzt ist: Ein helles Kinderzimmer, ein Elternschlafzimmer, ein Büro und ein komfortables Bad mit Wanne, Dusche und WC schaffen ein harmonisches Wohnumfeld. Auf rund 130 m² entsteht so ein Zuhause, das beständig Freude schenkt und Generationen verbindet.
Gegen Aufpreis auch mit Walmdach verfügbar.
Haustyp: Einfamilienhaus
Etagenanzahl: 2
Anzahl Schlafzimmer: 2
Anzahl Badezimmer: 1
Gäste-WC: ja
Bauphase: Haus in Planung (projektiert)
Zustand: Haus in Planung (projektiert)
Das könnte Ihnen auch gefallen
[FRANCE]
Geförderter Neubau inkl. Grundstück
RAUM FÜR FAMILIE & PremimDESIGN

![[FRANCE]](/de/upload/159378-13387-1-g.jpg)
![[FRANCE]](/de/upload/159379-13387-2-g.jpg)
![[FRANCE]](/de/upload/159380-13387-3-g.jpg)
![[FRANCE]](/de/upload/159381-13387-4-g.jpg)



















