Dahn:
::OKAL:: OFFEN GESTALTET, KLAR GEFORMT - auf Ihrem Bauplatz
Objekt-Nr.: NL 05092025-111

EINZIEHEN statt Ausbauen

Ansicht Eingang Satteldach

Ansicht Garten Walmdach

Ansicht Eingang Walmdach

Ansicht Küche und Essbereich

Ansicht Essbereich und Küche

Ansicht Wohnzimmer

Ansicht Galerie

Ansicht Badezimmer

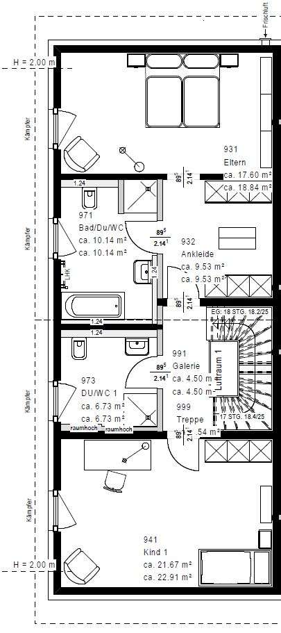
Grundriss Erdgeschoss

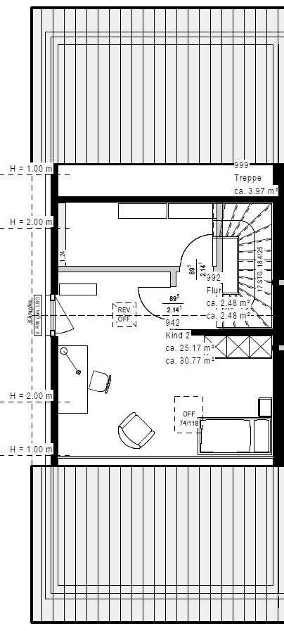
Grundriss Dachgeschoss











Preis:
419.900 €
Wohnfläche ca.:
151 m²
Grundstück ca.:
888 m²
Zimmeranzahl:
4
Das Herz dieses Hauses schlägt im offenen Küchen-, Wohn- und Essbereich, in dem Kochen, Genießen und Wohnen fließend ineinander übergehen und dennoch harmonisch gegliedert bleiben. Die Küche schließt praktisch an den Hauswirtschaftsraum an, kurze Wege erleichtern den Alltag. Ein separates Büro im Erdgeschoss bietet Raum für konzentriertes Arbeiten, Gäste-WC und Diele fügen sich unaufdringlich in die Grundrissstruktur ein. Im Dachgeschoss verbinden sich Funktion und Großzügigkeit: Zwei lichtdurchflutete Kinderzimmer, ein Elternschlafzimmer und ein komfortables Bad gruppieren sich um eine ästhetische Galerie, die dem Geschoss Leichtigkeit verleiht und den Blick ins Haus öffnet. Von außen setzt das Haus ein klares architektonisches Statement. Der moderne Silhouettenüberstand sorgt für Tiefe, während Symmetrien und feine Fassadenabsetzungen für visuelle Spannung sorgen. Der überdachte Hauseingang empfängt Bewohner und Gäste gleichermaßen einladend - ein Haus, das innen wie außen mit Anspruch geplant ist.
Gegen Aufpreis auch mit Walmdach verfügbar.
Haustyp: Einfamilienhaus
Etagenanzahl: 2
Anzahl Schlafzimmer: 3
Anzahl Badezimmer: 1
Gäste-WC: ja
Bauphase: Haus in Planung (projektiert)
Zustand: Haus in Planung (projektiert)
Das könnte Ihnen auch gefallen
Maximaler Wohnkomfort auf drei Etagen




















































