Reiffelbach:
KFN förderfähig :: Generationen wohnen zusammen
Objekt-Nr.: 08012025-13

Hausansicht

Wohnzimmer

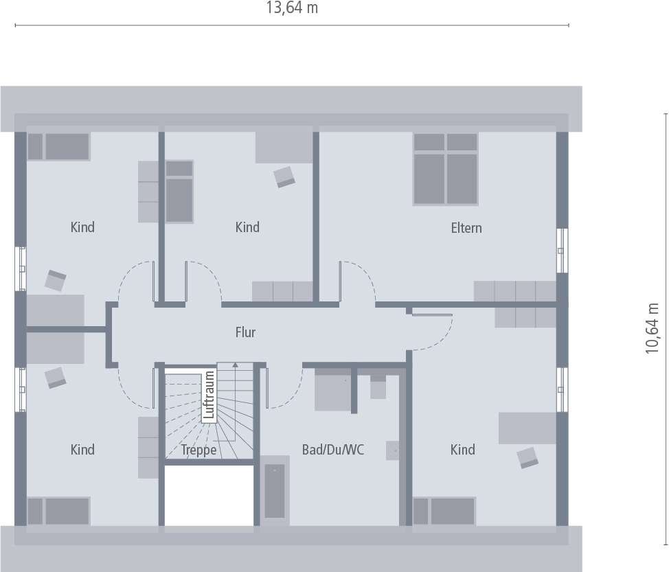
DG

EG




Preis:
626.600 €
Wohnfläche ca.:
238 m²
Grundstück ca.:
1.068 m²
Zimmeranzahl:
8
Unter dem Satteldach steckt reichlich Potential. Auf zwei Etagen finden Großfamilien viel Raum zur Entfaltung. Im Erdgeschoss trumpft der große Wohnbereich mit offener Küche auf. Kochen, essen, leben - hier trifft man sich und verbringt gemeinsame Stunden. Die vollflächige obere Etage bietet mit fünf Zimmern und großem Familien-Duschbad maximalen Freiraum und individuelle Rückzugsmöglichkeiten. Besonderes Extra: Die schicke Einliegerwohnung im Erdgeschoss offeriert vielfältige Nutzung: Zusätzliches Einkommen durch Vermietung, Platz für ein Au-pair oder Eltern, die im Alter gerne am Familienleben teilhaben und bei der Kinderbetreuung helfen. Gemeinsam macht stark.
Etagenanzahl: 2
Provisionspflichtig: nein
Einliegerwohnung: ja
Gäste-WC: ja
Bauphase: Haus in Planung (projektiert)
Das könnte Ihnen auch gefallen























