Martinshöhe:
MODERN, EFFIZIENZ, GROSSZÜGIG
Objekt-Nr.: IR-21082024-17

Ansicht Garten

Ansicht Esszimmer/Küche/Diele

Ansicht Esszimmer/Küche/Diele

Ansicht Esszimmer/Diele

Ansicht Küche

Ansicht Wohnzimmer

Grundriss Erdgeschoss

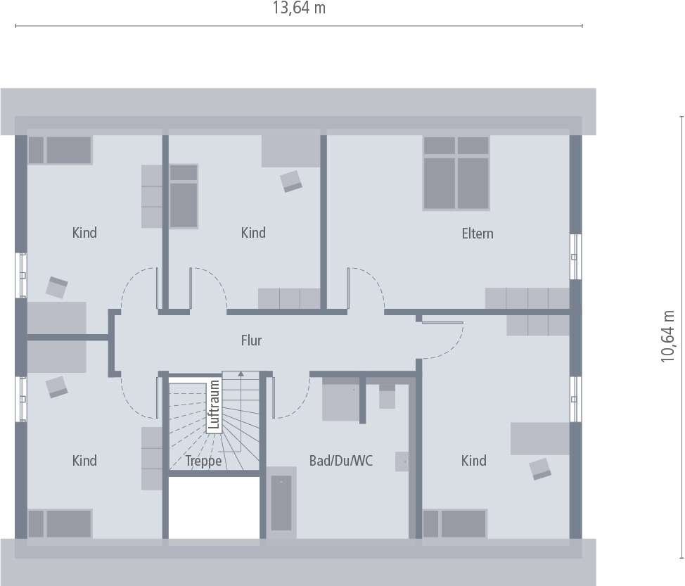
Grundriss Dachgeschoss








Preis:
641.900 €
Wohnfläche ca.:
211,76 m²
Grundstück ca.:
755 m²
Zimmeranzahl:
5
Wer das Besondere sucht, sollte einen Blick auf unsere Walmdachvilla werfen. Auch für kleinere Grundstücke bestens geeignet, überzeugt das schicke Stadthaus durch perfekte Raumaufteilung. Der licht- und raumspendende Erkeranbau verleiht dem kubistischen Baustil zusätzlichen Charme.
Für alle Naturliebhaber: Zwei Balkone sowie die große und teilweise überdachte Eckterrasse ermöglichen ganzjährig den Weg nach draußen. Die stützenden Wandscheiben setzen architektonische Akzente und bieten Wind- und Wetterschutz. Und auch für den Innenbereich gilt: typisch OKAL!
Haustyp: Einfamilienhaus
Etagenanzahl: 2
Anzahl Schlafzimmer: 3
Anzahl Badezimmer: 1
Gäste-WC: ja
Qualität der Ausstattung: gehoben
Bauphase: Haus in Planung (projektiert)
Zustand: Haus in Planung (projektiert)
Das könnte Ihnen auch gefallen
























