Maxdorf:
Ihr Traumhaus - gebaut auf Ihrem Grundstück oder mit unserem Grundstücksservice
Objekt-Nr.: SB 173

EINZIEHEN statt Ausbauen

Ansicht Garten Satteldach

Ansicht Eingang Satteldach

Ansicht Garten Walmdach

Ansicht Eingang Walmdach

Ansicht Wohnzimmer

Ansicht Küche und Essbereich

Ansicht Diele

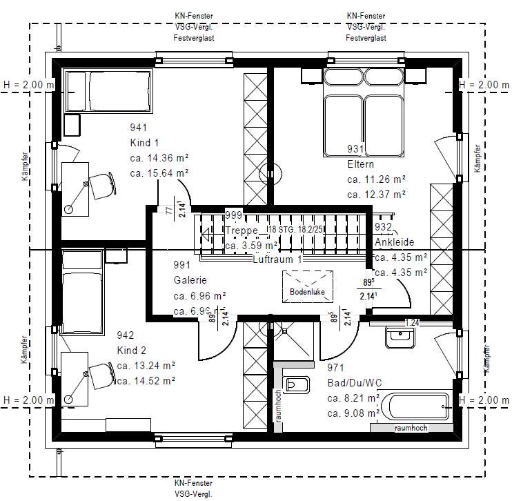
Grundriss Erdgeschoss

Grundriss Dachgeschoss










Preis:
406.900 €
Wohnfläche ca.:
148 m²
Grundstück ca.:
400 m²
Zimmeranzahl:
4
Auf zwei Ebenen vereint dieses Haus durchdachte Planung mit markantem Design. Die Fassade spielt mit Symmetrien und verleiht dem Baukörper eine besondere Präsenz, während der überdachte Eingang einen geschützten, einladenden Empfang schafft. Im Erdgeschoss öffnet sich die Diele zu einer klar gegliederten Raumfolge: Hauswirtschaftsraum und Gäste-WC sind dezent platziert, ein separates Büro bietet Rückzug für konzentriertes Arbeiten. Herzstück ist der offene Wohn-, Ess und Kochbereich, in dem großzügige Flächen und fließende Übergänge das Miteinander zum Erlebnis machen. Im Dachgeschoss sorgt die clevere Grundrissgestaltung für große Räume und einen bewusst klein gehaltenen Flur. Zwei helle Kinderzimmer, ein Elternschlafzimmer und ein komfortables Bad mit Wanne und Dusche schaffen Platz für alle Lebensphasen. Mit 149 m² bietet dieses Haus Raumqualität, die inspiriert - funktional, großzügig und im Detail präzise gestaltet.
Gegen Aufpreis auch mit Walmdach verfügbar.
Haustyp: Einfamilienhaus
Etagenanzahl: 2
Anzahl Schlafzimmer: 3
Anzahl Badezimmer: 1
Gäste-WC: ja
Bauphase: Haus in Planung (projektiert)
Das könnte Ihnen auch gefallen
Tolles Haus
OKAL-Verkaufsleitung Mitte-West
Herr Steffen Bauer
Hornbachstraße5
76879 Landau-Bornheim
Mobil: +49 152 04159543
67129 Maxdorf












































