Saarbrücken:
EINFAMILIENHAUS MIT OFFENER ARCHITEKTUR
Objekt-Nr.: SK23112025-02

Ansicht Eingang/Garten

Ansicht Garten

Ansicht Eingang/Garten Klinker

Ansicht Garten Klinker

Ansicht Eingang/Garten Winter

Grundriss Erdgeschoss

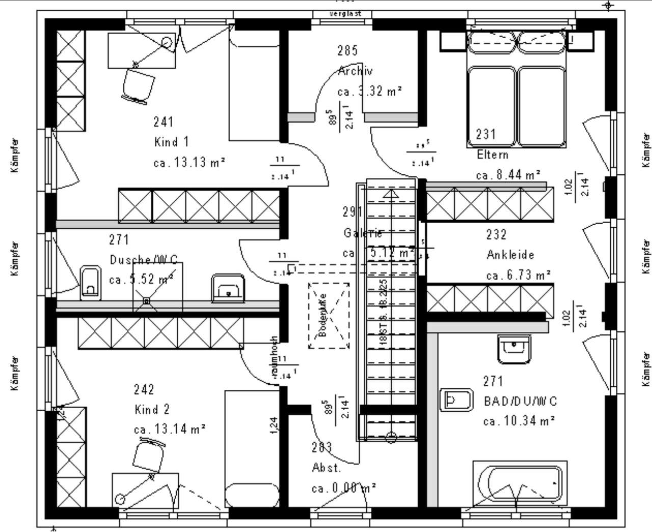
Grundriss Dachgeschoss







Preis:
518.900 €
Wohnfläche ca.:
135 m²
Grundstück ca.:
500 m²
Zimmeranzahl:
5
Zeitlose Eleganz außen, Weite und ein besonderes Raumgefühl innen - das ist unser Design 10. Unter dem Satteldach warten hier rund 135 m² auf zwei Ebenen darauf, bezogen und mit Leben gefüllt zu werden. Im Erdgeschoss ist Offenheit Trumpf: Hier erstreckt sich der große Wohn-Ess-Koch-Bereich nahezu über die gesamte Ebene, wird nur durch die zentral platzierte Treppe von der Diele abgetrennt. Das Ergebnis: ein lichtdurchfluteter, einladender und großzügiger Bereich zum Wohlfühlen und Treffen. Im Eingangsbereich stehen zudem ein kleines Gäste-WC sowie ein großer Hauswirtschaftsraum zur Verfügung. Über die mittig gelegene Treppe geht es ins Obergeschoss. Hier ist ausreichend Raum für Eltern und bis zu zwei Kinder. Die Eltern verfügen über ein großzügig geschnittenes Reich mit separatem Ankleideraum, zwei große Kinderzimmer lassen ebenfalls keine Wünsche offen. Abgerundet wird das Raumangebot in der oberen Etage durch ein großes Badezimmer mit Dusche, Wanne und WC.
Haustyp: Einfamilienhaus
Provisionspflichtig: nein
Gäste-WC: ja
Qualität der Ausstattung: gehoben
Bauphase: Haus in Planung (projektiert)
Zustand: Haus in Planung (projektiert)
Das könnte Ihnen auch gefallen
Traumhaus auf ihrem Grundstück
Ein Designhaus der Extraklasse
OKAL-Verkaufsleitung Mitte-West
Frau Sophia Krupp
Virginiastraße 12
66482 Zweibrücken
Mobil: +49 176 26245991


































