Hösbach:
*Aktionshaus EINZUGSFERTIG inkl. Küche* auf 520m² Grundstück - STADTVILLA 187m² für Familie mit 2 Kindern + Büro
Objekt-Nr.: 16113

Ansicht Garten

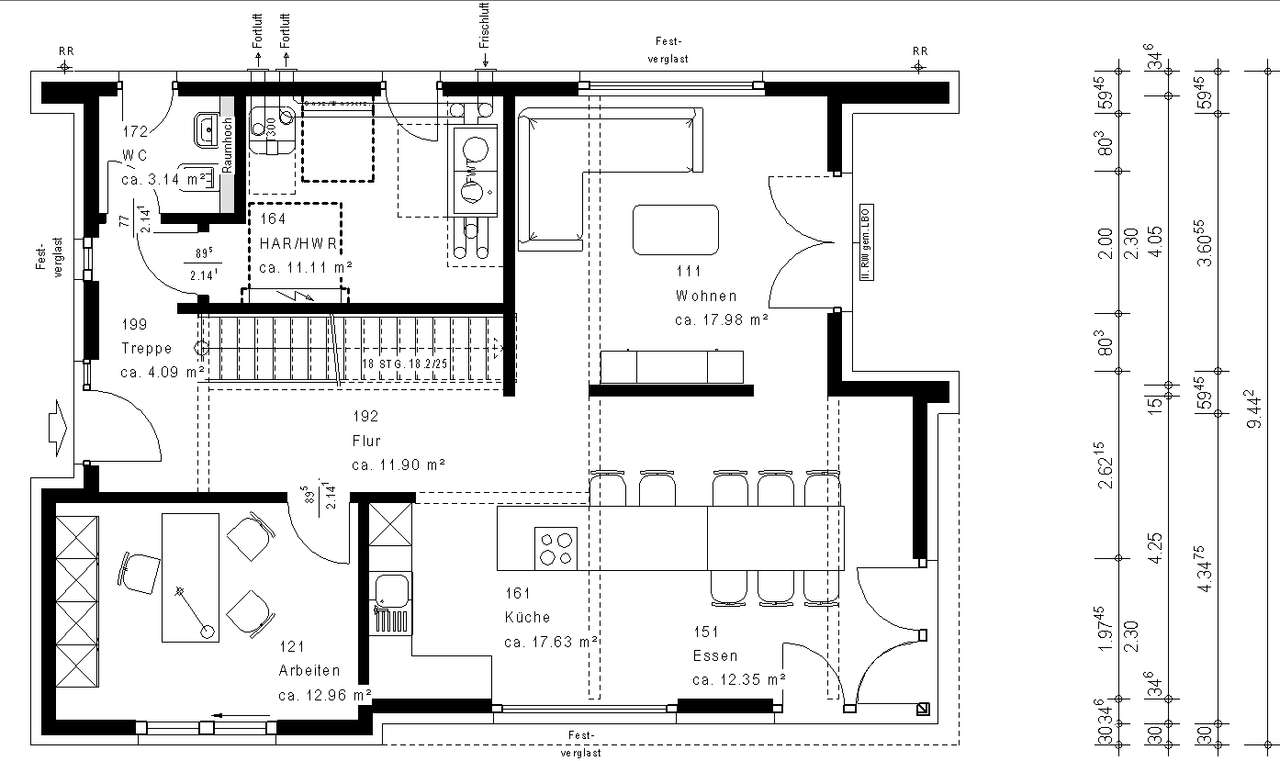
Grundriss Erdgeschoss

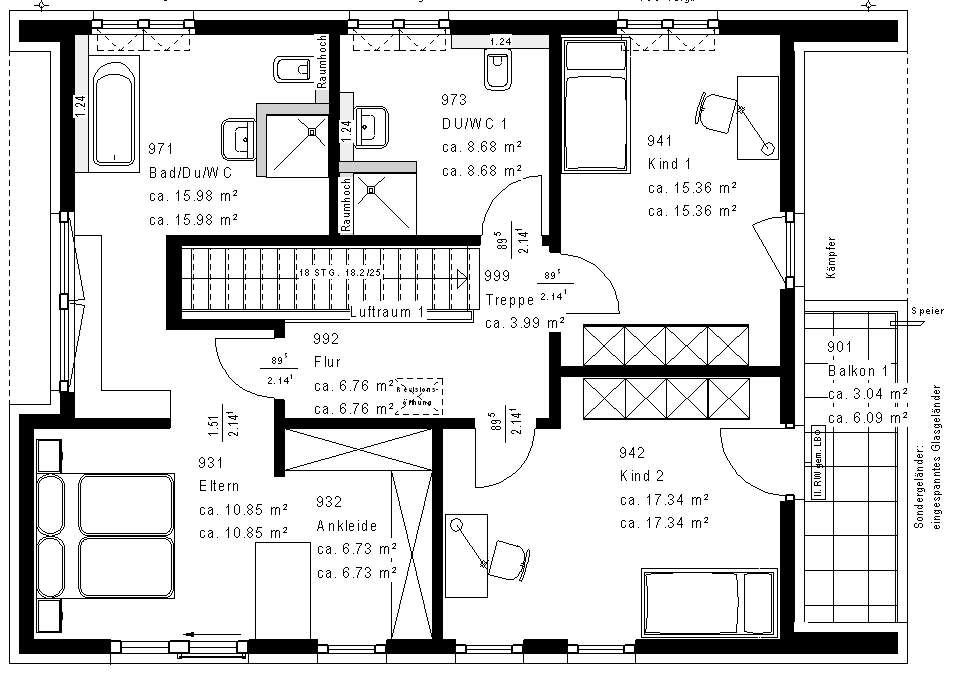
Grundriss Obergeschoss

2025 Heike Evert 1 Winteraktion

2025 Heike Evert 7 bis bald





Preis:
738.900 €
Wohnfläche ca.:
187 m²
Grundstück ca.:
520 m²
Zimmeranzahl:
6
STADTVILLA 187m² für Familie mit 2 Kindern und Büro, EIN RAUMWUNDER, EIN LIEBLINGSORT
Groß, zeitlos-elegant und bis ins kleinste Detail durchdacht - das ist unsere Stadtvilla 16. Auf einer Fläche von mehr als 180 m2, verteilt auf zwei Ebenen, ist ausreichend Platz zum Leben, Arbeiten und Relaxen. Zentraler Ort der Begegnung für Familie und Freunde ist der rund 50 m² große Wohn-Ess-Koch-Bereich. Große Fensterfronten ermöglichen einen direkten Zugang zum Garten und sorgen für maximalen Lichteinfall. Besonders praktisch: Direkt an die Küche schließen sich eine Speisekammer sowie der große Hauswirtschaftsraum an. Außerdem im Erdgeschoss: komfortables Arbeitszimmer und Gäste-WC. Über den offenen Dielenbereich geht es ins Obergeschoss und damit in den Rückzugsort für die Familienmitglieder. Die Eltern verfügen hier über eine Wohlfühloase mit großem Schlafbereich, separatem Ankleidezimmer und sich unmittelbar anschließendem Badezimmer mit Wanne, Dusche und WC. Gegenüber: das Reich der Kinder. Die beiden geräumigen Zimmer werden durch ein eigenes Bad voneinander getrennt. Abgerundet wird das Raumangebot durch einen praktischen Abstellraum.
Haustyp: Einfamilienhaus
Etagenanzahl: 2
Anzahl Schlafzimmer: 3
Anzahl Badezimmer: 2
Gäste-WC: ja
Qualität der Ausstattung: gehoben
Bauphase: Haus in Planung (projektiert)
Verfügbar ab: 2027
Zustand: Haus in Planung (projektiert)
Das könnte Ihnen auch gefallen

OKAL-Verkaufsleitung Mitte-West
Frau Heike Evert
Ludwig-Erhard-Straße1-2
61118 Bad Vilbel
Mobil: +49 173 8483038




















































