Gonbach:
Neues Haus? Ja! KLARE LINIEN, OFFENES LEBEN
Objekt-Nr.: NL 02122025-48

Ansicht Garten

Ansicht Eingang

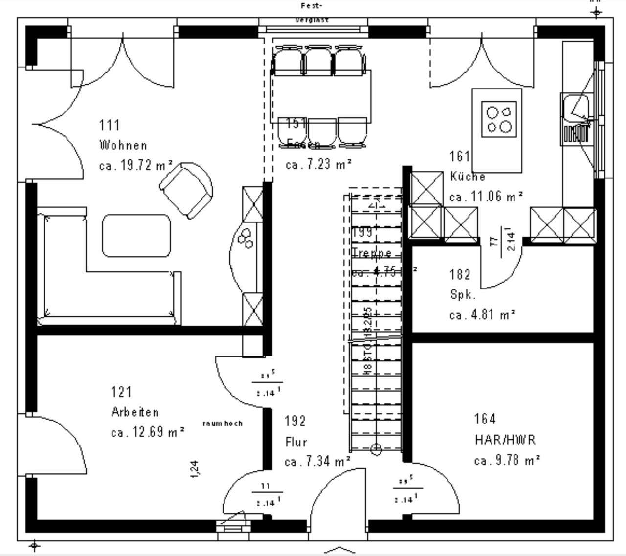
Grundriss Erdgeschoss

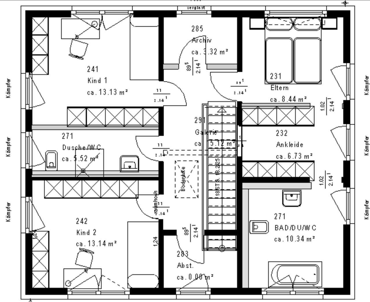
Grundriss Dachgeschoss




Preis:
359.900 €
Wohnfläche ca.:
154,06 m²
Grundstück ca.:
555 m²
Zimmeranzahl:
5
Das Design 10.2 steht für modernes Wohnen mit Charakter. Auf 140 m² verbindet sie Design und Alltag auf harmonische Weise. Der offene Wohn- und Essbereich bildet das Herzstück - hell, großzügig und mit einer geraden Treppe, die als Designelement den Raum gliedert. Büro, Gäste-WC, Hauswirtschaftsraum und Speisekammer machen das Erdgeschoss ebenso funktional wie stilvoll. Im Obergeschoss empfängt ein lichtdurchfluteter Flur, der zu den privaten Rückzugsorten führt: ein Elternzimmer, zwei Kinderzimmer und ein großzügiges Familienbad. Unter dem klassischen Satteldach entsteht ein Zuhause, das Ästhetik und Geborgenheit vereint.
Haustyp: Einfamilienhaus
Anzahl Schlafzimmer: 3
Anzahl Badezimmer: 2
Gäste-WC: ja
Bauphase: Haus in Planung (projektiert)
Zustand: Haus in Planung (projektiert)
Das könnte Ihnen auch gefallen

OKAL-Verkaufsleitung Mitte-West
Herr Nathan Lezius
Am Buchenwald26
67659 Kaiserslautern
Mobil: +49 163 1630818








































