Boden:
WOHNEN UND WOHLFÜHLEN - einzugsfertig inkl. Bodenplatte
Objekt-Nr.: 16337

Ansicht Garten

Ansicht Garten

Ansicht Garten

Ansicht Garten

Ansicht Garten

Ansicht Eingang

Ansicht Eingang

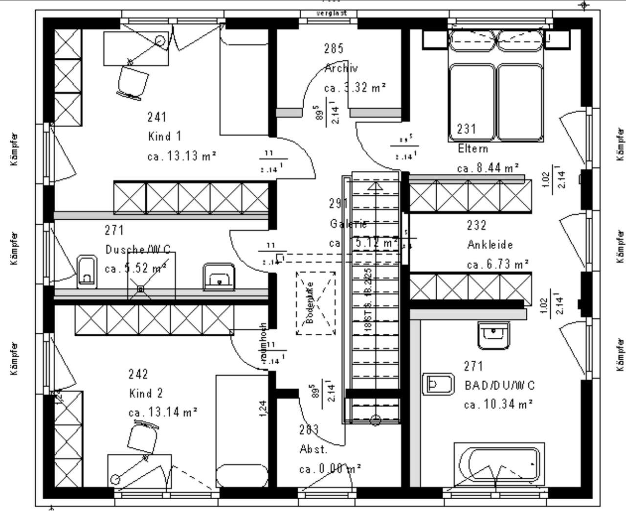
Grundriss Erdgeschoss








Preis:
435.980 €
Wohnfläche ca.:
106 m²
Grundstück ca.:
771 m²
Zimmeranzahl:
3
Unser Bungalow 1 Walmdach bietet auf einer Wohnfläche von 107 m² alles, was die Kleinfamilie zum Wohnen und Wohlfühlen benötigt. Das kombinierte Wohn-Ess-Zimmer ist großzügig geschnitten und dank drei Glastüren zum Garten hin schön hell. Auch die vom Esszimmer türlos zugängliche Küche bietet genügend Platz und Tageslicht. Der angrenzende, 10 m² große Hauswirtschaftsraum ist auch direkt von außen betretbar und hat dadurch gleich in doppelter Hinsicht einen praktischen Nutzen: Einkäufe können auf diese Weise direkt versorgt werden und die Wohnräume bleiben von möglichen Schmutzschuhen verschont. Der ebenfalls geräumige Flur verbindet den Wohnbereich des Hauses mit den privaten Rückzugsorten: dem Bereich der Eltern mit Schlafzimmer und angeschlossener Ankleide und einem lichtdurchfluteten Kinderzimmer. Ein voll ausgestattetes Bad mit Badewanne und Dusche sowie ein Gäste-WC runden das Angebot ab.
Haustyp: Bungalow
Etagenanzahl: 1
Provisionspflichtig: nein
Nutzfläche ca.: 106,93 m²
Küche: Einbauküche
Anzahl Schlafzimmer: 2
Anzahl Badezimmer: 1
Gäste-WC: ja
Qualität der Ausstattung: gehoben
Baujahr: 2026
Bauphase: Haus in Planung (projektiert)
Zustand: Haus in Planung (projektiert)
Energietyp: Neubaustandard
Energieausweistyp: Bedarfsausweis
Energieeffizienz-Klasse: A+
Baujahr laut Energieausweis: 2026
Ihr Traumhaus verdient den perfekten Platz! Dieses Hausprojekt wird auch individuell auf Ihrem eigenen Grundstück realisiert – dort, wo Sie sich am wohlsten fühlen. Ob mitten in der Stadt, idyllisch am Stadtrand oder in naturnaher Umgebung: Sie entscheiden, wo Ihr neues Zuhause entstehen soll. Sie haben noch kein Grundstück? Keine Sorge – unser exklusiver Grundstücksservice unterstützt Sie aktiv dabei, das passende Grundstück zu finden. Profitieren Sie von unserem Netzwerk und unserer Erfahrung: Gemeinsam entdecken wir die Lage, die zu Ihrem Leben passt, und schaffen die Grundlage für Ihr persönliches Traumhaus. Rufen Sie mich gerne direkt unter 0163-4223557 an und vereinbaren Sie Ihren persönlichen Beratungstermin. Oder schreiben Sie mir einfach eine E-Mail an bianca.schillings@okal.de – ich freue mich darauf, Sie kennenzulernen und mit Ihnen gemeinsam den Weg zu Ihrem Traumhaus zu gehen! Ihre Bianca Schillings
Das könnte Ihnen auch gefallen
moderne OKAL Stadtvilla zum Top Preis
Tolles Haus

OKAL-Verkaufsleitung Mitte-West
Frau Bianca Schillings
Auf der Held8
56593 Obersteinebach
Mobil: +49 163 4223557



























































