Lindenberg:
ZUHAUSE AUF ZWEI ETAGEN VOLLER LEBEN
Objekt-Nr.: NL 03122025-111
















Preis:
321.900 €
Wohnfläche ca.:
107,70 m²
Grundstück ca.:
555 m²
Zimmeranzahl:
3
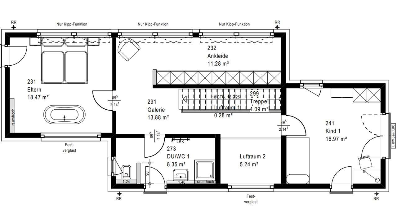
Die Stadtvilla 9 nutzt ihre 107 m² perfekt - mit einem Grundriss, der modernes Familienleben leicht macht. Im Erdgeschoss öffnet sich der helle Wohnbereich mit Küche und Essplatz zu einem Raum, in dem der Alltag fließt: gemeinsam frühstücken, Hausaufgaben begleiten, abends entspannen. Große Fenster holen Licht und Garten hinein. Ein Gäste-WC und der praktische Hauswirtschaftsraum sorgen für Ordnung im Alltag. Oben findet jeder seinen Platz: ein Elternzimmer als Rückzugsort, zwei Kinderzimmer zum Spielen und Träumen sowie ein Familienbad, das den Tag mit Leichtigkeit beginnen lässt.
Haustyp: Einfamilienhaus
Etagenanzahl: 2
Anzahl Schlafzimmer: 3
Anzahl Badezimmer: 1
Gäste-WC: ja
Bauphase: Haus in Planung (projektiert)
Zustand: Haus in Planung (projektiert)
Das könnte Ihnen auch gefallen
Raumwunder für kleines Grundstück

OKAL-Verkaufsleitung Mitte-West
Herr Nathan Lezius
Am Buchenwald26
67659 Kaiserslautern
Mobil: +49 163 1630818



































