Wied:
Okal - Haus in Wied Nähe Hachenburg
Objekt-Nr.: ewmü07/2022 Wied

csm_cool-summer-21-1-header_fa

Otto's Beste 1_Design_10_EG

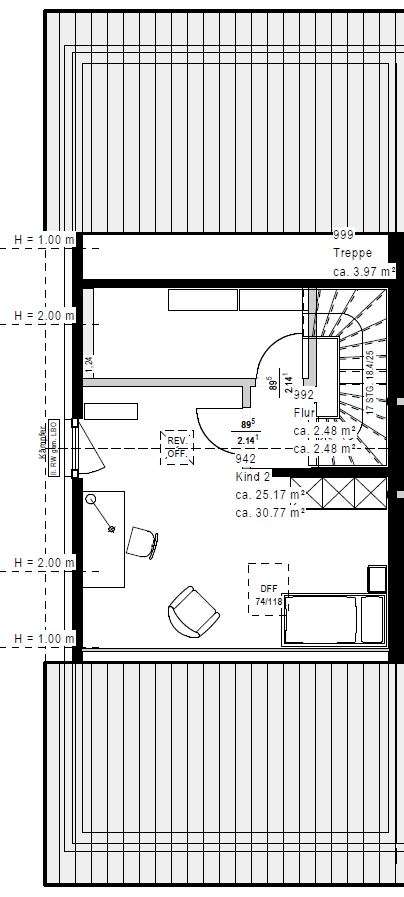
Otto's Beste 1_Design_10_DG



Preis:
340.000 €
Wohnfläche ca.:
135 m²
Grundstück ca.:
600 m²
Zimmeranzahl:
5
Bauherren mit geringerem Raumbedarf oder kleinem Grundstück finden mit Design 8 die perfekte Lösung. Der Satteldachklassiker in Kubusform überzeugt mit hohem Wohnkomfort und lässt keine Wünsche offen. Größe und reichlich Freiraum offeriert der im Erdgeschoss offen gehaltene Grundriss. Drinnen und draußen scheinen hier förmlich zu verschmelzen, denn gleich vier Türen ermöglichen einen direkten Zugang aus dem Wohn- in den Außenbereich. Und auch in der oberen Etage hält das Tageslicht dank bodentiefer Fenster rundum Einzug. Raumnutzung und -aufteilung sind flexibel: Schlafen, Büro, Kinder, Gäste? Alles ist möglich.
Etagenanzahl: 2
Provisionspflichtig: nein
Nutzfläche ca.: 110 m²
Anzahl Schlafzimmer: 3
Anzahl Badezimmer: 1
Gäste-WC: ja
Das könnte Ihnen auch gefallen
OKAL-Verkaufsleitung Mitte-West
57629 Wied
Westerwaldkreis
Rheinland-Pfalz

















































