Bell:
Ihr Einfamilienhaus mit offener Architektur *EINZUGSFERTIG*
Objekt-Nr.: 149353495

Design 10

Erdgeschoss

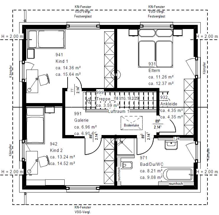
Dachgeschoss

Entspanntes Bauen mit OKAL

Beispiel Diele 3

Beispiel Gästebad (oK)

Beispiel Gästebad (oK1)

Beispiel Küche1.2

Beispiel Kochen und Wohnen

Beispiel Küche 1.1

Beispiel Essen 2

Beispiel Essen 1.1

Beispiel Wohnen

Beispiel Bereich Wohnen 2.4.

Beispiel Wohnen 2.1

Beispiel Wohnen2.2

Beispiel Wohnen 2.3.

Beispiel Wohn- und Essbereich

Beispiel Diele

Nachhaltiges Bauen mit OKAL

Beispiel Flur

Beispiel Ankleide (oK)

Beispiel Schlafzimmer (mK)

Beispiel Kinderzimmer (mK)

Beispiel Kinderzimmer (mK1)

Beispiel Masterbad (mK)


























Preis:
366.800 €
Wohnfläche ca.:
135 m²
Grundstück ca.:
542 m²
Zimmeranzahl:
5
Zeitlose Eleganz außen, Weite und ein besonderes Raumgefühl innen – das ist unser Design 10. Unter dem Satteldach warten hier rund 135 m² auf zwei Ebenen darauf, bezogen und mit Leben gefüllt zu werden. Im Erdgeschoss ist Offenheit Trumpf: Hier erstreckt sich der große Wohn-Ess-Koch-Bereich nahezu über die gesamte Ebene, wird nur durch die zentral platzierte Treppe von der Diele abgetrennt. Das Ergebnis: ein lichtdurchfluteter, einladender und großzügiger Bereich zum Wohlfühlen und Treffen. Im Eingangsbereich stehen zudem ein kleines Gäste-WC sowie ein großer Hauswirtschaftsraum zur Verfügung. Über die mittig gelegene Treppe geht es ins Obergeschoss. Hier ist ausreichend Raum für Eltern und bis zu zwei Kinder. Die Eltern verfügen über ein großzügig geschnittenes Reich mit separatem Ankleideraum, zwei große Kinderzimmer lassen ebenfalls keine Wünsche offen. Abgerundet wird das Raumangebot in der oberen Etage durch ein großes Badezimmer mit Dusche, Wanne und WC.
Haustyp: Einfamilienhaus
Etagenanzahl: 1
Provisionspflichtig: nein
Nutzfläche ca.: 135 m²
Anzahl Schlafzimmer: 3
Anzahl Badezimmer: 2
Gäste-WC: ja
Letzte Modernisierung/ Sanierung: 2024
Qualität der Ausstattung: gehoben
Bauphase: Haus in Planung (projektiert)
Zustand: Erstbezug
Das könnte Ihnen auch gefallen
modernes, kompaktes Raumkonzept
OKAL-Verkaufsleitung Mitte-West
56745 Bell
Mayen-Koblenz
Rheinland-Pfalz


















































