Langenfeld:
Moderne Architektur mit höchstem Wohnkomfort!
Objekt-Nr.: 149083374

Pult 13

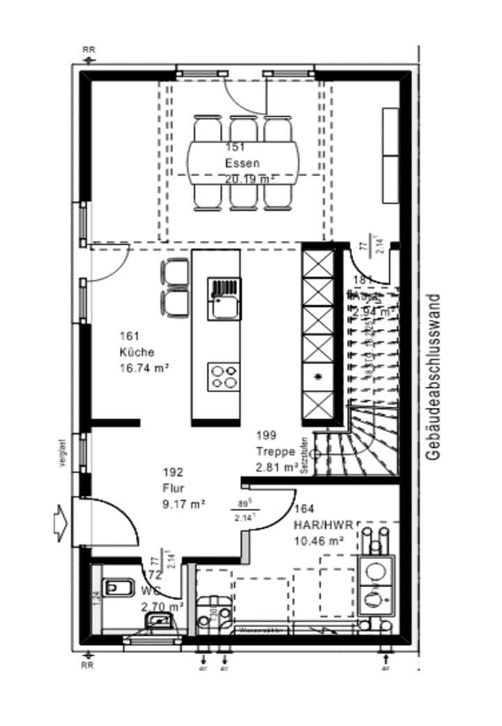
Grundriss-EG

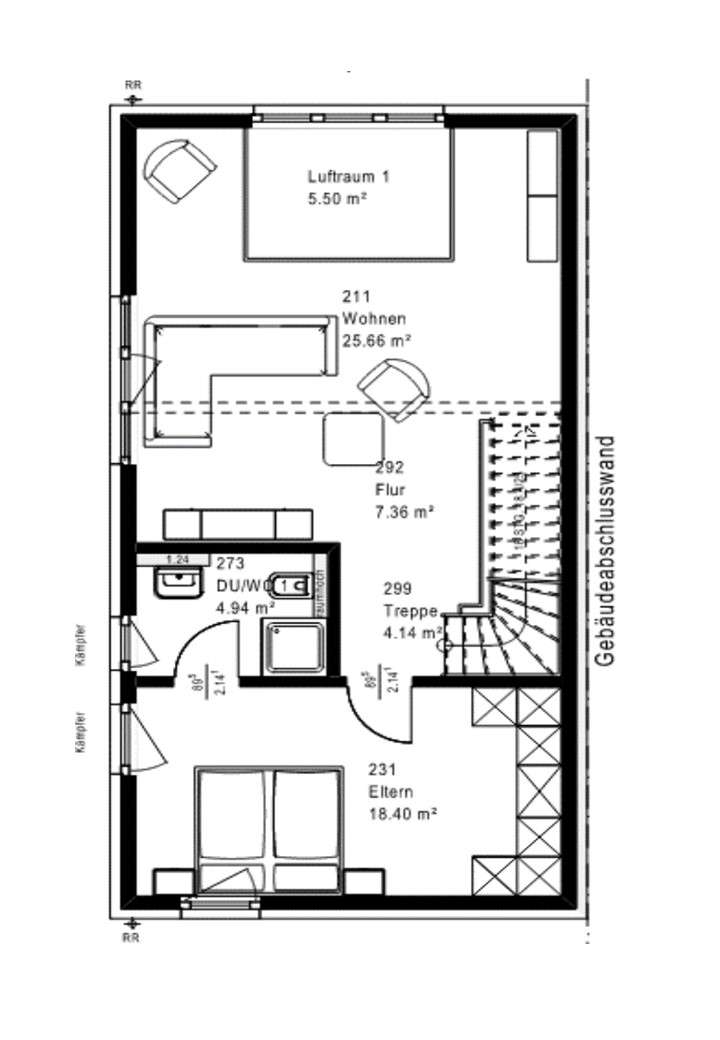
Grundriss-DG

Hausansicht

Sitzfenster





Preis:
528.900 €
Wohnfläche ca.:
171,81 m²
Grundstück ca.:
740 m²
Zimmeranzahl:
6
Mondän und urban präsentiert sich das 2-geschossige Pultdachhaus.
Die exklusive Stadtvilla vereint moderne Architektur mit höchstem Wohnkomfort.
Im Entrée trennt die offene Treppe WC und HWR geschickt vom restlichen Wohnbereich ab.
Auch das Büro findet hier seinen Platz.
Der offene Koch- und Wohnbereich wird durch ein freistehendes Wandelement stilvoll unterbrochen.
Vom Wohn- und Esszimmer geht es zur großlächigen Eckterrasse.
Im Obergeschoss ist die Elternsuite mit Bad und Ankleide dank kluger Raumaufteilung geschickt von den Kinderzimmern mit eigenem Dusch-WC abgegrenzt.
Pult 13 besticht mit Rundum-Lichteinfall: bodentiefe Fenster, Übereckverglasung und zusätzliche Oberlichter schaffen lichtdurchflutete Räume.
OKAL-Spezial: Großes Sitzfenster im Wohnbereich aus Buche, Esche, Eiche oder Nuss gratis on top.
Haustyp: Einfamilienhaus
Provisionspflichtig: nein
Anzahl Schlafzimmer: 4
Anzahl Badezimmer: 1
Gäste-WC: ja
Qualität der Ausstattung: gehoben
Baujahr: 2024
Bauphase: Haus in Planung (projektiert)
Das könnte Ihnen auch gefallen
OKAL-Verkaufsleitung Mitte-West
56729 Langenfeld
Mayen-Koblenz
Rheinland-Pfalz



































