Rödermark:
Geförderter Neubau (KFN Ready)
Objekt-Nr.: 149955167

Otto's Beste 1_Design_10

Kick Off 22_Eingang Küche

Kick Off 22_Wohnen Essen 2

Kick Off 22_Wohnen Essen 3

Kick Off 22_Eingang Büro

Kick Off 22_Treppe DG

Kick Off 22_Masterbad DG

Kniestock hoch Werder Schlafen

Kinderzimmer

Kniestock hoch_Schlafraum

Bonus3

Proxon FLH Einbau Zentralgerät

OKAL Vorteile

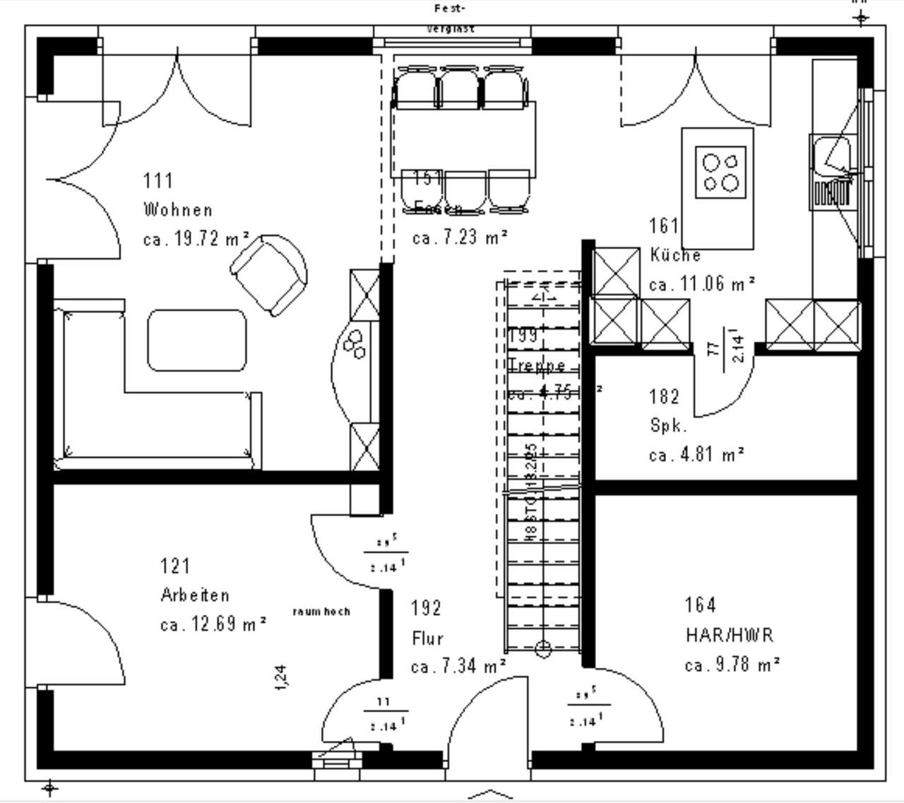
Kick Off 22_Grundriss EG

Kick Off 22_Grundriss DG

Kick Off 22_Schnitt
















Preis:
599.990 €
Wohnfläche ca.:
134 m²
Grundstück ca.:
338 m²
Zimmeranzahl:
4
Gerüstet für die Zukunft!
Klima-Freundlicher-Neubau (KFN Ready) mit dem QNG-Zertifikat
Zeitlose Eleganz außen, Weite und ein besonderes Raumgefühl
innen – das ist unser Kickoff 22. Unter dem Satteldach warten
hier rund 130 m² auf zwei Ebenen darauf, bezogen und mit Leben
gefüllt zu werden.
Im Erdgeschoss ist Offenheit Trumpf: Hier
erstreckt sich der große Wohn-Ess-Koch-Bereich nahezu über
die gesamte Ebene, wird nur durch die zentral platzierte Treppe
von der Diele abgetrennt. Das Ergebnis: ein lichtdurchfluteter,
einladender und großzügiger Bereich zum Wohlfühlen und
Treffen. Im Eingangsbereich stehen zudem ein kleines Gäste-
WC sowie ein großer Hauswirtschaftsraum zur Verfügung. Über
die mittig gelegene Treppe geht es ins Obergeschoss. Hier ist
ausreichend Raum für Eltern und bis zu zwei Kinder. Die Eltern
verfügen über ein großzügig geschnittenes Reich mit separatem
Ankleideraum, zwei große Kinderzimmer lassen ebenfalls keine
Wünsche offen. Abgerundet wird das Raumangebot in der oberen
Etage durch ein großes Badezimmer mit Dusche, Wanne und WC.
Haustyp: Einfamilienhaus
Etagenanzahl: 2
Provisionspflichtig: nein
Anzahl Schlafzimmer: 3
Anzahl Badezimmer: 1
Gäste-WC: ja
Qualität der Ausstattung: gehoben
Bauphase: Haus in Planung (projektiert)
Verfügbar ab: 2025
Zustand: Erstbezug
Befeuerungsart: Elektro
Energieausweistyp: Bedarfsausweis
Energieeffizienz-Klasse: A+
Das könnte Ihnen auch gefallen
moderne OKAL Stadtvilla KFW 40+
Das Haus zu Ihrem Grundstück
Urbane Stadtvilla für zwei Familien
OKAL-Verkaufsleitung Mitte-West
63322 Rödermark
Offenbach
Hessen










































