Offenbach:
Mehrgenerationen Wohnen mit viel Freiraum
Objekt-Nr.: 149603410

Ottos-Beste-09_Eingang

Ottos-Beste-09_Terrasse

__OKAL_Bildvorlage_immoscout_G

Essen

Essen_Wandscheibe_EG

TH_Schlafen_02_OG

T-Lösung_Dusche_WC

Treppenaufgang_O13

Bad DachflächenFenster

JugendZimmer Kniestock hoch

Design-17_2_Schlafen-II

Pultdach Dachgeschoss

Proxon_entfeuchtete Luft_Kühle

Proxon FLH Einbau Zentralgerät

OKAL Vorteile

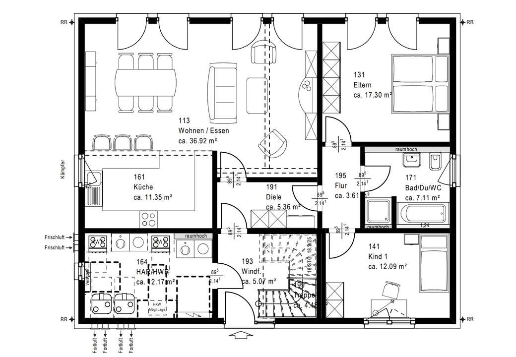
09_Grundriss EG

09_Grundriss DG

















Preis:
899.990 €
Wohnfläche ca.:
196 m²
Grundstück ca.:
447 m²
Zimmeranzahl:
8
Ob als Generationenhaus, Zwei-Familienhaus oder andere Wohnkonstellation: Hier lässt sich Wohnraum in Form von zwei Wohneinheiten flexibel nutzen. Otto’s Beste 9 überzeugt durch zeitloses Design und durchdachte Grundrissgestaltung. Der großzügige Wohn-Ess-Bereich mit angeschlossener Küche punktet durch eine offen gehaltene Raumaufteilung sowie durch die bodentiefen Fenster, die viel natürliches Licht in die Räume lassen und so eine helle Atmosphäre schaffen. Weiterhin befinden sich auf den rund 112 m² Wohnfläche des Erdgeschosses zwei flexibel nutzbare Schlafzimmer, zwischen das denen geräumige Bad mit Wanne, Dusche und WC direkt erreichbar ist. Über den Eingangsbereich können der Hauswirtschaftsraum sowie die Treppe zur zweiten Wohneinheit im Dachgeschoss (Wohnfläche ca. 85 m²) erreicht werden. Auch hier bietet der Wohn-Ess-Bereich ausreichend Platz zum Verweilen und die großen Fensterfronten einen herrlichen Blick ins Freie. Die große Wohnfläche bietet zudem ein geräumiges Schlaf- und Kinderzimmer sowie ein großes Bad.
Haustyp: Mehrfamilienhaus
Etagenanzahl: 2
Provisionspflichtig: nein
Nutzfläche ca.: 16 m²
Anzahl Schlafzimmer: 4
Anzahl Badezimmer: 2
Einliegerwohnung: ja
Gäste-WC: ja
Qualität der Ausstattung: gehoben
Bauphase: Haus in Planung (projektiert)
Verfügbar ab: 2025
Befeuerungsart: Elektro
Energieausweistyp: Bedarfsausweis
Energieeffizienz-Klasse: A+
Das könnte Ihnen auch gefallen
Klein, aber oho: Bis ins letzte Detail liebevoll durchdacht!
Der EFH-Klassiker zum Traumpreis!
OKAL-Verkaufsleitung Mitte-West
63075 Offenbach
Offenbach am Main
Hessen










































