Rödermark:
Maximaler Wohnkomfort auf drei Etagen
Objekt-Nr.: 149564559

DH_15

__OKAL_Bildvorlage_immoscout_G

2Raum Küche

2Raum 11_Essen_Treppe_SPK

wohnzimmer01_erdgeschoss

Kinder_OG

Kniestock hoch_Schlafraum

Werder_Dusche_Kniestock

DG_JPG

TH_Studio_03_DG

Proxon FLH Einbau Zentralgerät

PROXON_Features

Proxon_entfeuchtete Luft_Kühle

Grundriss DH15 EG

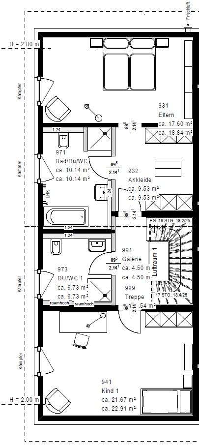
DH_15_Grundriss_OG

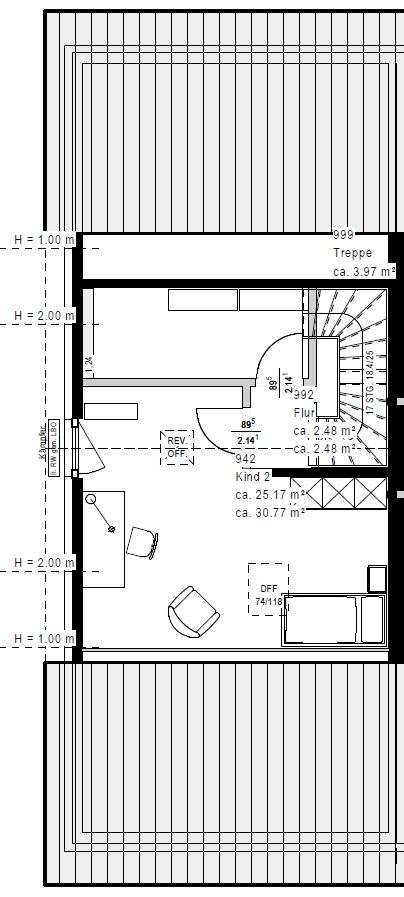
DH_15_Grundriss_DG

DH_15_Schnitt

















Preis:
699.500 €
Wohnfläche ca.:
156 m²
Grundstück ca.:
497 m²
Zimmeranzahl:
6
Knapp 140 qm Wohnraum, verteilt auf drei Geschosse – dieses Doppelhaus bietet maximalen Wohnkomfort ohne Kompromisse. Schon das Erdgeschoss besticht durch seine großzügige Raumaufteilung: Der offen gehaltene Koch-Ess-Bereich sowie der sich unmittelbar anschließende Wohnbereich überzeugen mit seiner Größe von mehr als 27 qm. Die großen Fensterfronten ermöglichen einen direkten Zugang zum Garten und sorgen für einen Rundum-Lichteinfall. Abgerundet wird das Raumangebot im Erdgeschoss durch eine praktische Speisekammer direkt neben der Küche, einen Hauswirtschaftsraum sowie ein Gäste-WC. In den Obergeschossen befindet sich der Rückzugsort für die Familie: Neben zwei großen Zimmern gibt es zwei seperate Bäder sowie einen Ankleidebereich. Unmittelbar unterm Satteldach: das Reich der Eltern/ Kind. Diese verfügen über ein knapp 20 qm großes Dachstudio mit zusätzlichem Dachflächenfenster und einen weiteren Abstellraum. Mehr Wohlfühlambiente geht nicht!
Haustyp: Doppelhaushälfte
Etagenanzahl: 3
Provisionspflichtig: nein
Anzahl Schlafzimmer: 4
Anzahl Badezimmer: 2
Gäste-WC: ja
Als Ferienhaus geeignet: ja
Qualität der Ausstattung: gehoben
Bauphase: Haus in Planung (projektiert)
Verfügbar ab: 2025
Zustand: Erstbezug
Befeuerungsart: Elektro
Energieausweistyp: Bedarfsausweis
Energieeffizienz-Klasse: A+
Das könnte Ihnen auch gefallen
OKAL-Verkaufsleitung Mitte-West
63322 Rödermark
Offenbach
Hessen









































