Nidda:
Ein elegantes Raumwunder
Objekt-Nr.: 2869




























Preis:
495.350 €
Wohnfläche ca.:
125 m²
Grundstück ca.:
650 m²
Zimmeranzahl:
5
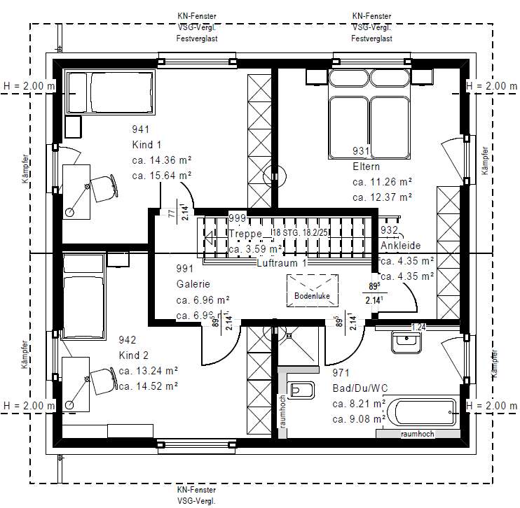
Die klassische Stadtvilla 11 mit quadratischem Grundriss und Walmdach besticht durch klare Linien, eine geschickte Raumaufteilung und viel Lichteinfall. Im Erdgeschoss dominiert der rund 32 m2 große, komplett offene Wohn-Ess-Bereich. Zwei große Flügeltüren führen von hier in den Garten und sorgen für reichlich Tageslicht. Die zum Esszimmer hin offene Küche, ein Gäste-WC sowie der geräumige Hauswirtschaftsraum befinden sich ebenfalls auf dieser Ebene. Von der Diele führt eine Treppe in das obere Stockwerk, das zugleich Rückzugsort für Eltern und bis zu zwei Kinder ist. Neben zwei Kinderzimmern und einem Bereich für die Eltern findet sich hier ein großes Bad, in dem am Morgen auch die ganze Familie Platz findet. Auf insgesamt rund 125 m2 haben die neuen Eigenheimbesitzer hier einen Ort der Ruhe und Erholung, des Rückzugs und der Entspannung.
Haustyp: Einfamilienhaus
Etagenanzahl: 2
Provisionspflichtig: nein
Anzahl Schlafzimmer: 3
Anzahl Badezimmer: 1
Gäste-WC: ja
Keller: nein
Qualität der Ausstattung: gehoben
Bauphase: Haus in Planung (projektiert)
Zustand: Haus in Planung (projektiert)
Der Preis beinhaltet das einzugsfertige Haus inklusive der Bodenplatte. Grundstückspreis ist im dem Betrag enthalten. Erwerbsnebenkosten wie Maklergebühren, Notarkosten und Grunderwerbsteuer sind nicht enthalten. Baunebenkosten wie Erdarbeiten, Vermessergebühren und Hausanschlüsse sind ebenfalls nicht berücksichtigt.
Das könnte Ihnen auch gefallen
OKAL-Verkaufsleitung Mitte-West
63667 Nidda
Wetteraukreis
Hessen





































