Simmern:
EIN BAUHAUS MIT VIELEN WOHNLICHEN PLUSPUNKTEN
Objekt-Nr.: VORLAGE! Black Label Bauhaus 17

Ansicht Garten

Ansicht Eingang

Grundriss Erdgeschoss

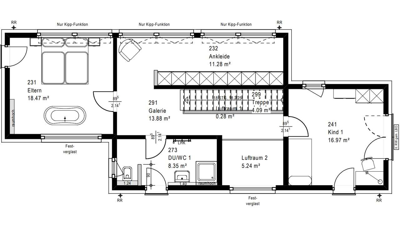
Grundriss Obergeschoss




Preis:
Preis auf Anfrage
Wohnfläche ca.:
206,64 m²
Zimmeranzahl:
8
Kleinere und größere rechteckige Elemente fügen sich bei unserem Black Label 17 zu einem harmonischen Ganzen zusammen, das mit einer außergewöhnlichen Fassade, mit Vorsprüngen und Rückversätzen und vor allem mit zahlreichen wohnlichen Mehrwerten überzeugt. So punktet das Einfamilienhaus auf der Rückseite im Obergeschoss mit einem großen Balkon, während darunter ein überdachter Terrassenbereich entsteht, der sich perfekt an den Erker schmiegt, der im Inneren dem Essbereich einen ganz besonderen Schnitt verleiht. Apropos Inneres: Das bietet den künftigen Eigenheimbesitzern eine Wohnfläche von mehr als 200 m², verteilt auf zwei Ebenen. Im Erdgeschoss befinden sich neben dem geräumigen Wohn-Ess-Koch-Bereich, der durch eine zentral gelegene Speisekammer von Flur und Dielenbereich abgetrennt wird, ein Hauswirtschaftsraum sowie ein Gäste-WC. Vom großen Flur führt der Weg ins Obergeschoss. Hier befinden sich zwei Kinderzimmer, die jeweils über einen Zugang zu einem eigenen Balkon und einem separaten Bad verfügen, das große Elternschlafzimmer mit Ankleide, Badezimmer und einem weiteren Balkon. Verbindendes Element in der ersten Etage ist die Galerie, in der ausreichend Platz für eine kleine Bibliothek oder eine Relax-Ecke ist.
Haustyp: Einfamilienhaus
Etagenanzahl: 2
Anzahl Schlafzimmer: 3
Anzahl Badezimmer: 2
Terrasse: 1
Gäste-WC: ja
Keller: nein
Qualität der Ausstattung: gehoben
Bauphase: Haus in Planung (projektiert)
Zustand: Haus in Planung (projektiert)
Das könnte Ihnen auch gefallen
EIN STATTLICHES BAUHAUS MIT PERSPEKTIVE
DESIGN-HIGHLIGHT FÜR ALLE, DIE ES BESONDERS LIEBEN


























































