Simmern:
PURISTISCHES DOPPELHAUS
Objekt-Nr.: VORLAGE! ZweiRaum 07

Ansicht Garten

Ansicht Garten

Ansicht Garten

Ansicht Garten

Ansicht Eingang

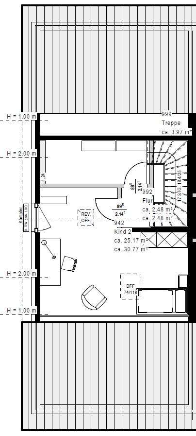
Grundriss Erdgeschoss

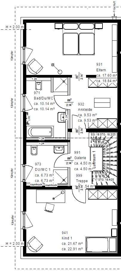
Grundriss Obergeschoss







Preis:
Preis auf Anfrage
Wohnfläche ca.:
231,45 m²
Zimmeranzahl:
8
Die kubistische Stadtvilla mit Flachdach beeindruckt mit klaren Linien und schlichten Akzenten. Purismus vom Feinsten. Das kompakte Raumwunder ermöglicht Wohnen auf zwei Ebenen, mit identischen, aber gespiegelten Grundrissen. Ansonsten herrscht harmonische Einheit. Die geraden Treppen führen stilgetreu in die obere Etage. Neben dem Elternschlafzimmer können hier zwei weitere Räume als Kinderzimmer oder für Hobby und Home-Office genutzt werden. Großflächige Fenster- und Türelemente schenken den Räumen Leichtigkeit und Lichtfülle. Das Flachdach ermöglicht volle Raumhöhe auch in der oberen Etage und bleibt dem Bauhausstil treu.
Haustyp: Zweifamilienhaus
Etagenanzahl: 2
Anzahl Schlafzimmer: 6
Anzahl Badezimmer: 2
Gäste-WC: ja
Qualität der Ausstattung: gehoben
Bauphase: Haus in Planung (projektiert)
Zustand: Haus in Planung (projektiert)
Das könnte Ihnen auch gefallen
KLASSISCHES MEHRGENERATIONENHAUS MIT PRAKTISCHER AUFTEILUNG
DREI GENERATIONEN, KEINE KOMPROMISSE
MODERNES ZWEIFAMILIENHAUS MIT VIELSEITIGEM GRUNDRISS





































