Nußloch:
Zwei Wohneinheiten – mit vielen architektonischen Besonderheiten. Der Hingucker!

Objekt-Nr.: HG0685ZR11
ZweiRaum 11 Aktion

ZweiRaum 11 Aktion

ZweiRaum 11

ZweiRaum 11

Dafür stehe ich

Dafür stehe ich

Exklusive Boni2

Exklusive Boni2

KFW Förderung

KFW Förderung

Bemusterung

Bemusterung

Frau Heidrun Glaser

Frau Heidrun Glaser

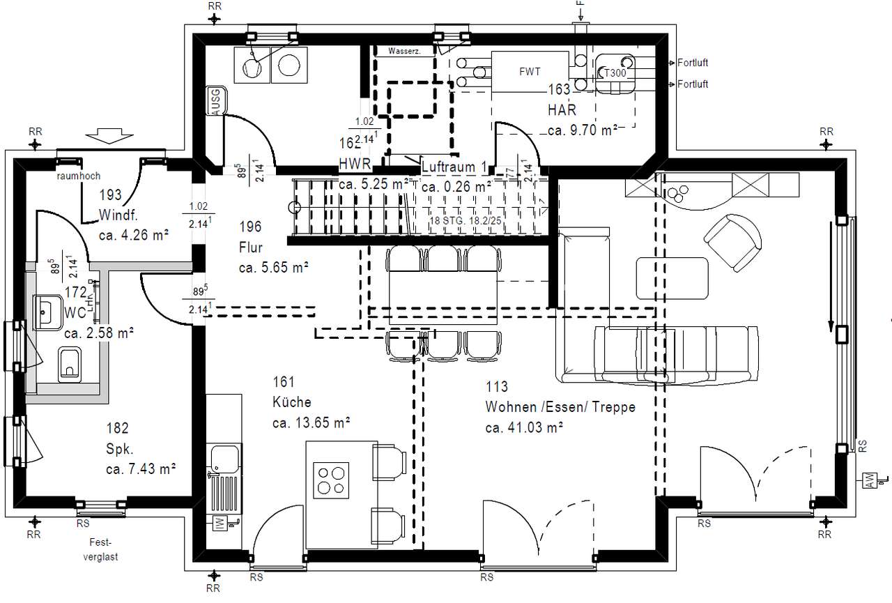
Erdgeschoss

Erdgeschoss

Erster Stock

Erster Stock

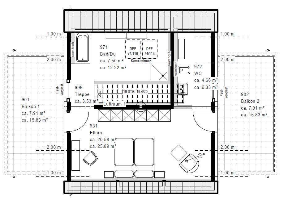
Zweiter Stock

Zweiter Stock

Für schlaue Füchse

Für schlaue Füchse

Ihre Wünsche - Unsere Leistung

Ihre Wünsche - Unsere Leistung

Darum OKAL

Darum OKAL

Holz rettet Klima

Holz rettet Klima

OKAL Prime Lieferung

OKAL Prime Lieferung

Hausbau Design Award 2024

Hausbau Design Award 2024

Plus X Award 2024

Plus X Award 2024

Arbeitgeber der Zukunft

Arbeitgeber der Zukunft

Hauskatalog

Hauskatalog

ZweiRaum 11 Aktion
ZweiRaum 11
Dafür stehe ich
Exklusive Boni2
KFW Förderung
Bemusterung
Frau Heidrun Glaser
Erdgeschoss
Erster Stock
Zweiter Stock
Für schlaue Füchse
Ihre Wünsche - Unsere Leistung
Darum OKAL
Holz rettet Klima
OKAL Prime Lieferung
Hausbau Design Award 2024
Plus X Award 2024
Arbeitgeber der Zukunft
Hauskatalog

Preis:
1.243.900 €

Wohnfläche ca.:
311 m²

Grundstück ca.:
451 m²

Zimmeranzahl:
10

Objektbeschreibung

Das gehobene Doppelhaus auf 2,5 Etagen

Das 2 ½-geschossige Raumwunder besticht durch großflächige Raumaufteilung auf drei Ebenen. Wohnen/Kochen, Kinder/ Bad, Eltern/Büro – für jeden Bereich gibt es eine eigene Etage. Die Grundrisse sind gespiegelt und identisch. Für Individualität und Persönlichkeit sorgen die Bewohner. Alle Räume bestechen durch Größe und Helligkeit. Unter dem nur leicht gewinkelten Pultdach präsentieren sich lässige 1,70 m Kniestockhöhe im Dachgeschoss. Absolutes Highlight hier: die raumgroßen Dachterrassen für ungestörte Sonnenstunden unter freiem Himmel.

Mehr anzeigen
Weitere Informationen

Haustyp: Mehrfamilienhaus


Etagenanzahl: 3


Einliegerwohnung: ja


Keller: nein


Bauphase: Haus in Planung (projektiert)


Ihre Ansprechpartnerin

OKAL-Verkaufsleitung Mitte-West
Frau Heidrun Glaser

Am Ligusterhag47
69469 Weinheim
Telefon: +49 172 7757168
Büro: +49 6201 3895599


Objekt-Adresse

69226 Nußloch
Rhein-Neckar-Kreis
Baden-Württemberg
Objekt weiterempfehlen

QR-Code