Frankfurt Main:
moderne OKAL Stadtvilla zum Top Preis
Objekt-Nr.: 155080020

Stadtvilla 10 - 03

EMO_Einzug

Schiebetür_Küche

Staffel 16_Esszimmer

EMO 14

Wohnen 2

__OKAL_Bildvorlage_immoscout_G

2Raum 7_Wohnen Essen

Stadtvilla 16_Galerie OG_Luftr

Kniestock_max_Schlafen_Werder

Schlafen_Vollgeschoss

Innen Ankleide

Staffel 16_Jungszimmer

T-Lösung_Dusche_WC

Kinder_4

Proxon FLH Einbau Zentralgerät

OKAL Vorteile

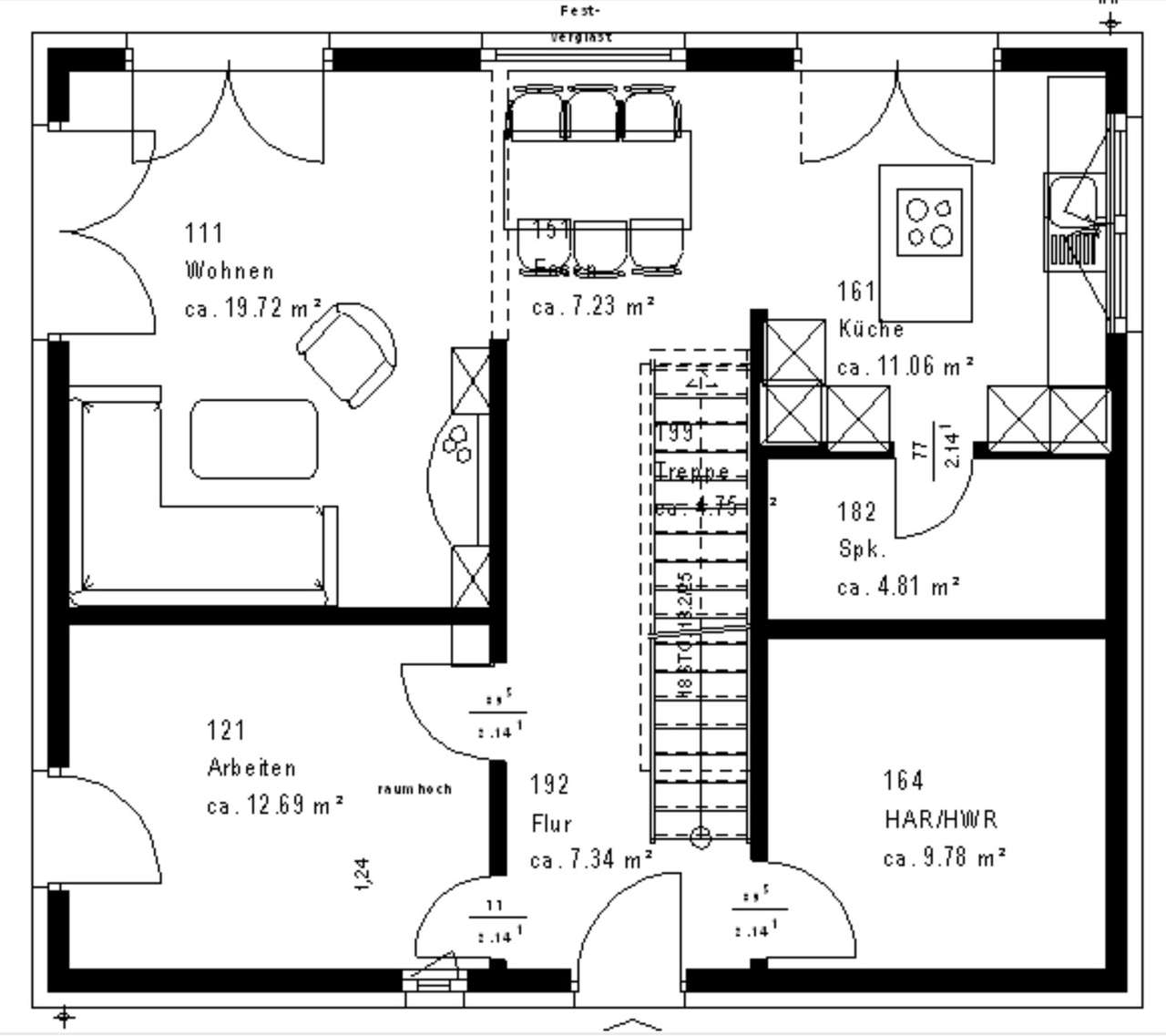
Grundriss EG

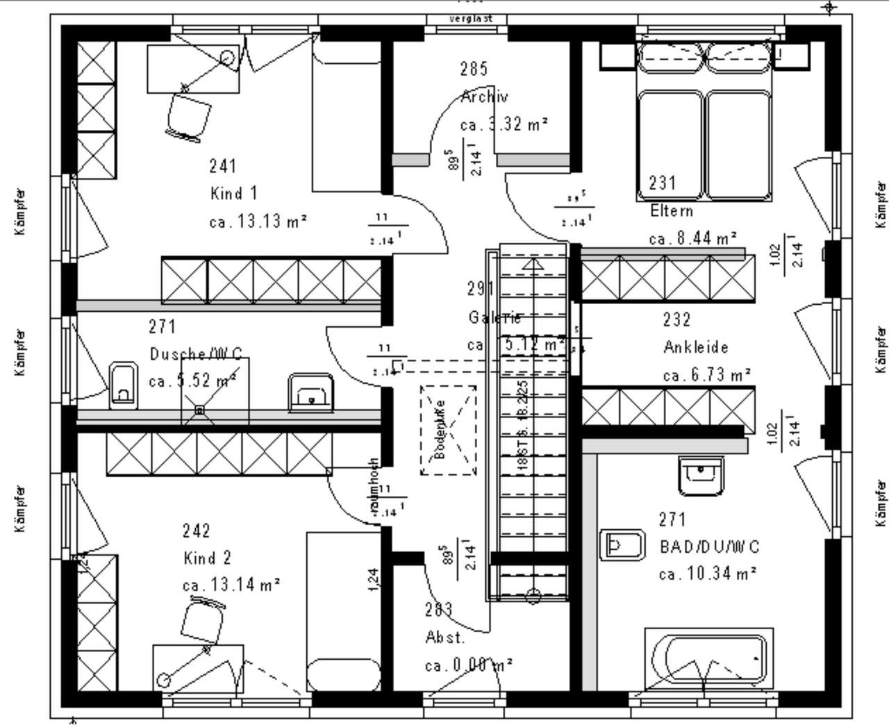
Grundriss OG

Schnitt_Stadtvilla 10




















Preis:
1.179.990 €
Wohnfläche ca.:
149 m²
Grundstück ca.:
613 m²
Zimmeranzahl:
5
Unter diesem Walmdach steckt ein ganz besonderes Konzept – und schon auf den ersten Blick ist hier die Individualität unverkennbar. Der rechteckige Grundriss bietet Raum für Singles, Paare und Familien. Die außergewöhnliche Planung sorgt für eine klare Gliederung in beiden Etagen. Groß, zeitlos-elegant und bis ins kleinste Detail durchdacht –
das zeichnet diese Stadtvilla aus! Auf einer Fläche von knapp 160 qm, verteilt auf zwei Ebenen. Zentraler Ort der Begegnung für Familie und Freunde ist der rund 38 qm große Wohn-Ess-Koch-Bereich.
Große Fensterfronten ermöglichen einen direkten Zugang
zum Garten und sorgen für maximalen Lichteinfall. Besonders
praktisch: Direkt an die Küche schließt sich eine Speisekammer
an. Außerdem im Erdgeschoss: ein komfortables Arbeits- od. Gästezimmer. Über
den offenen Dielenbereich geht es ins Obergeschoss
und damit in den Rückzugsort für die Familienmitglieder. Die Eltern verfügen
hier über eine Wohlfühloase mit großem Schlafbereich, separatem
Ankleidezimmer und sich unmittelbar anschließendem Badezimmer
mit Wanne, Dusche und WC. Gegenüber: das Reich der
Kinder. Die beiden geräumigen Zimmer werden durch ein eigenes
Bad voneinander getrennt. Abgerundet wird das Raumangebot
durch einen praktischen Abstellraum auf der Galerie.
Haustyp: Einfamilienhaus
Etagenanzahl: 2
Provisionspflichtig: nein
Anzahl Schlafzimmer: 4
Anzahl Badezimmer: 1
Gäste-WC: ja
Qualität der Ausstattung: gehoben
Bauphase: Haus in Planung (projektiert)
Verfügbar ab: 2025
Befeuerungsart: Elektro
Energieausweistyp: Bedarfsausweis
Energieeffizienz-Klasse: A+
Das könnte Ihnen auch gefallen
OKAL-Verkaufsleitung Mitte-West
Herr Bernd Brenzinger
Spessartstraße23e
63477 Maintal
Mobil: +49 152 08929207
60437 Frankfurt Main
Frankfurt am Main
Hessen
















































