Bad König:
MODERNES WOHNEN MIT STIL UND KOMFORT
Objekt-Nr.: 5959

Ansicht Garten

Ansicht Küche

Ansicht Esszimmer

Ansicht Schlafzimmer/Badezimmer

Ansicht Wohnzimmer

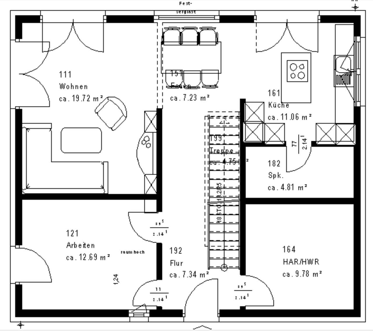
Grundriss Erdgeschoss

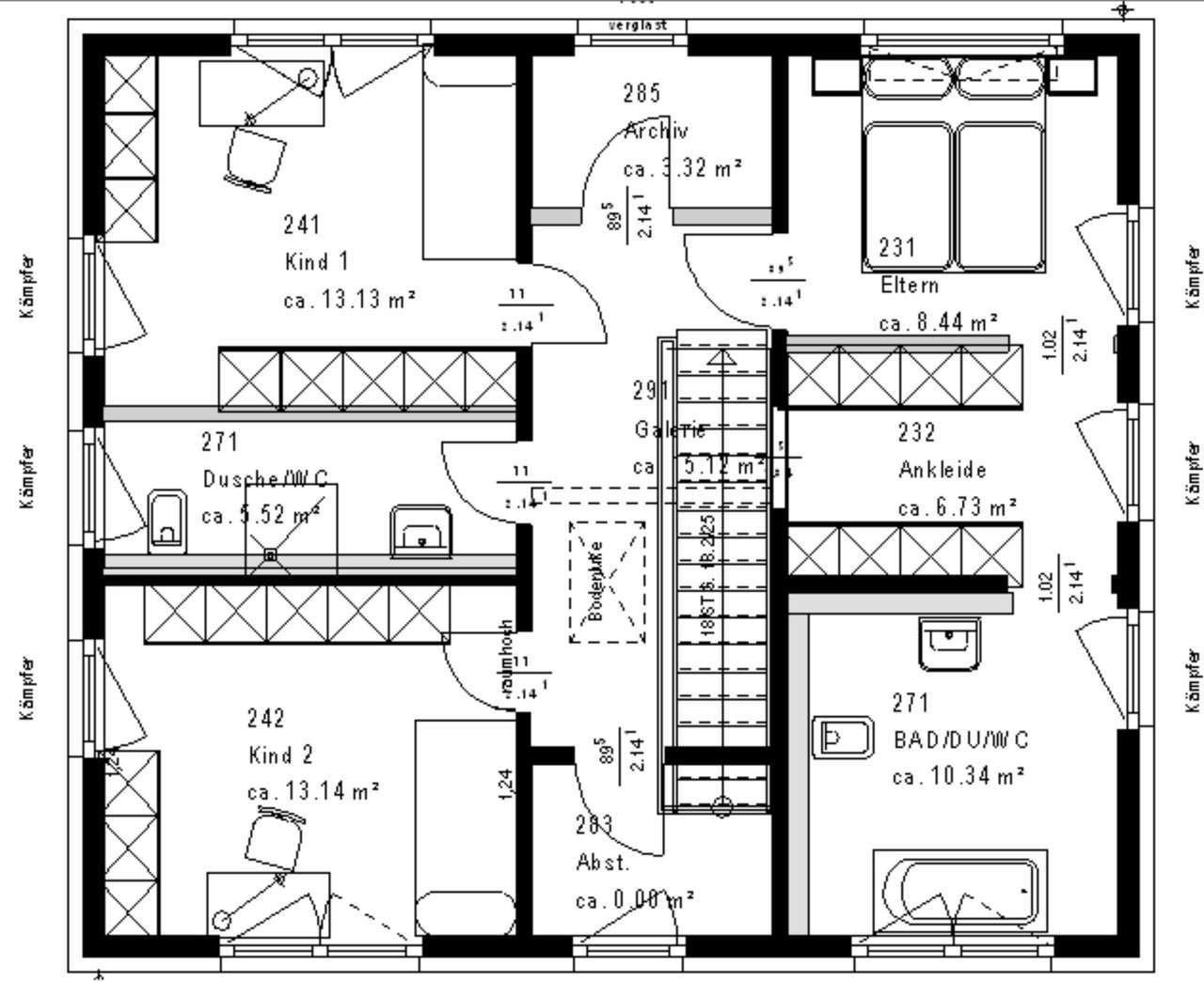
Grundriss Dachgeschoss







Preis:
488.300 €
Wohnfläche ca.:
197 m²
Grundstück ca.:
680 m²
Zimmeranzahl:
5
Im Erdgeschoss dieses Einfamilienhauses empfängt Sie ein großzügiges und offenes Wohnzimmer, das nahtlos ins Esszimmer und anschließend in die Küche übergeht. Diese lichtdurchflutete Raumgestaltung schafft eine einladende Atmosphäre, ideal für gesellige Abende mit Familie und Freunden. Von hier aus hat man zudem Zugang zur Terrasse. Ein besonderes Highlight des Hauses ist das große Carport, das nicht nur ausreichend Platz für Fahrzeuge bietet, sondern auch zusätzlichen Stauraum schafft. Im Dachgeschoss befinden sich zwei helle Kinderzimmer. Ein gemeinsames Badezimmer sorgt für zusätzlichen Komfort für die kleinen Bewohner. Das große Schlafzimmer für die Eltern ist ein Rückzugsort der Extraklasse, denn es verfügt über ein integriertes Badezimmer und eine angrenzende Ankleide. Unser Design 13.2 vereint durchdachte Raumkonzepte mit modernen Designelementen und schafft so ein Zuhause, das sowohl stilvoll als auch praktisch ist.
Haustyp: Einfamilienhaus
Etagenanzahl: 2
Anzahl Schlafzimmer: 3
Anzahl Badezimmer: 3
Terrasse: 1
Anzahl der Parkflächen: 1 x Carport
Qualität der Ausstattung: gehoben
Bauphase: Haus in Planung (projektiert)
Zustand: Haus in Planung (projektiert)
Das könnte Ihnen auch gefallen
OKAL-Verkaufsleitung Mitte-West
Herr Daniel Fröhlich
Hauptstraße36
64711 Erbach
Mobil: +49 171 1428964












































