Gau-Odernheim:
Wohlfühlhaus mit Style zum Aktionspreis
Objekt-Nr.: 7169


























Preis:
478.700 €
Wohnfläche ca.:
183 m²
Zimmeranzahl:
5
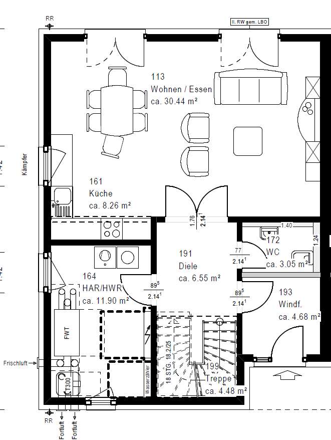
Klassisch und stilvoll präsentiert sich das 2-geschossige Einfamilienhaus Design 13. Unter dem Satteldach vereinen sich moderne Architektur und höchster Wohnkomfort. Im Entrée trennt die offene Treppe WC und HWR räumlich vom restlichen Wohnbereich ab. Auch das Büro findet hier seinen Platz. Der offene und helle Koch- und Wohnbereich wird durch ein freistehendes Wandelement gekonnt unterbrochen. Vom Wohn- und Esszimmer geht es zur großflächigen Eckterrasse. Im Obergeschoss ist die Elternsuite mit Bad und Ankleide dank kluger Raumaufteilung geschickt von den Kinderzimmern mit eigenem Dusch-WC abgegrenzt. Der Dachvorsprung an der Giebelseite setzt nicht nur gestalterische Akzente, sondern sorgt auch für einen geschützten Aufenthalt im Freien.
→ Der Kaufpreis gilt ausschließlich für das projektierte Haus. Kosten für das Baugrundstück und damit einhergehende Nebenkosten, als auch die Kosten für die Außenanlagen sind nicht im Preis enthalten.…
→ AKTION Grundstücksbonus: Haben Sie schon ein Grundstück? Dann wählen Sie einen aus mehreren tollen Boni aus und sichern Sie sich Ihren Vorteil!
→ 22-Monate-Festpreisgarantie! Kostenlos! Von OKAL für Sie!
→ OKAL bietet Ihnen eine tolle Auswahl an verschiedenen Hausmodellen an. Auch haben Sie die Möglichkeit, alle OKAL-Häuser speziell auf Ihre Wünsche und Bedürfnisse anpassen zu lassen. Auf unserer Homepage www.okal.de haben Sie die Möglichkeit, weitere Häuser passend zu Ihrem eigenen Wohntraum zu entdecken.
Sie haben noch kein Grundstück? Kein Problem. Dann nehmen Sie unser Angebot "kostenfreier Grundstücksservice" an und wir unterstützen Sie aktiv, das ideale Grundstück für Ihr Traumhaus zu finden.
Wir begleiten Sie von Anfang an, bei der Planung Ihres Wohntraumes bis zur Schlüsselübergabe und stehen Ihnen persönlich als Ansprechpartner zur Seite.
Für weitere Fragen und Informationen können Sie mich gerne auch persönlich unter 0175 9571152 erreichen.
Haustyp: Einfamilienhaus
Das könnte Ihnen auch gefallen
OKAL-Verkaufsleitung Mitte-West
Herr Jörg Braun
Ludwig-Erhard-Straße1
61118 Bad Vilbel
Mobil: +49 172 6100757
55239 Gau-Odernheim
Alzey-Worms
Rheinland-Pfalz


































