Hümmerich:
Cool Summer AKTION !!! KLEIN, ABER OHO - Malervorbereitet auf Ihrem Grundstück
Objekt-Nr.: 8620


Grundriss Erdgeschoss

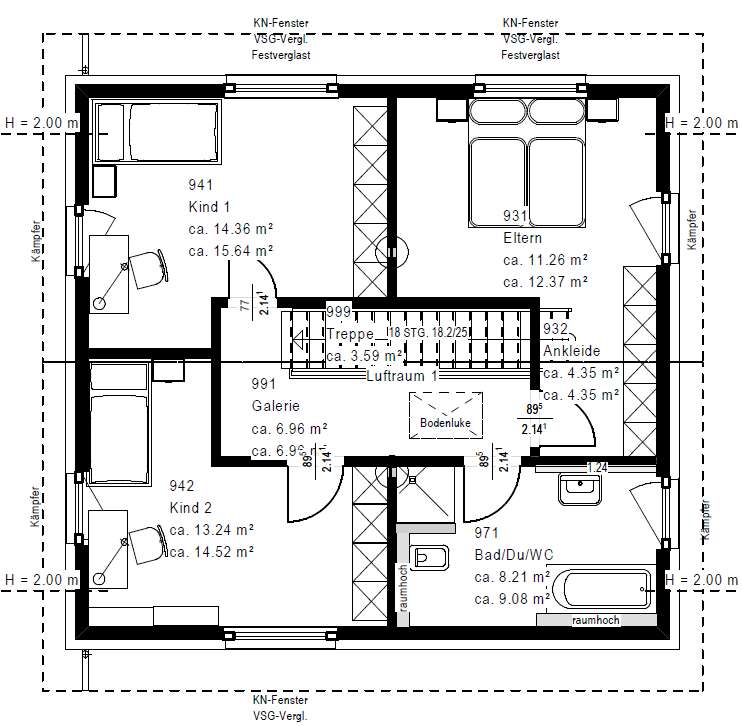
Grundriss Dachgeschoss



Preis:
259.900 €
Wohnfläche ca.:
106 m²
Zimmeranzahl:
3
Schlichte Eleganz gepaart mit einem durchdachten Raumkonzept - das zeichnet dieses Einfamilienhaus aus. Die geradlinige Architektur wird noch unterstrichen durch die zweifarbige Fassadengestaltung, die dem Haus eine besondere Note verleiht und sie optisch noch einmal zusätzlich aufwertet. Geradlinig geht es auch im Inneren weiter. Herzstück im Erdgeschoss ist der große und lichtdurchflutete Wohn-Ess-Koch-Bereich mit direktem Zugang zum Garten. Dieser ist räumlich getrennt von Hauswirtschaftsraum und Gäste-WC. Von der geräumigen Diele, in der ausreichend Platz für eine Garderobe ist, führt eine Treppe ins Dachgeschoss. Hier wird der Wohnraum perfekt ausgenutzt. Zwei Kinderzimmer, ein Schlafzimmer für die Eltern sowie ein geräumiges Bad mit Wanne, Dusche und WC bieten hier einen idealen Rückzugsort. Auf einer Wohnfläche von rund 107 Quadratmeter ist hier ein gemütlicher und komfortabler Wohlfühlort für die ganze Familie entstanden.
Haustyp: Einfamilienhaus
Etagenanzahl: 2
Anzahl Schlafzimmer: 3
Anzahl Badezimmer: 1
Gäste-WC: ja
Baujahr: 2026
Bauphase: Haus in Planung (projektiert)
Zustand: Haus in Planung (projektiert)
Befeuerungsart: Wärmepumpe
Energietyp: Neubaustandard
Energieausweistyp: Bedarfsausweis
Energieeffizienz-Klasse: A+
Baujahr laut Energieausweis: 2026
Das könnte Ihnen auch gefallen
geräumiges EFH für schmale Grundstücke

OKAL-Verkaufsleitung Mitte-West
Herr Edwin Weingarten
Musterhausstraße127
56218 Mülheim-Kärlich
Mobil: +49 177 4031056
Impressum















































