Ahrbrück:
Cool Summer AKTION !!! WOHLFÜHLHAUS MIT AUSSICHT - Malervorbereitet auf Ihrem Grundstück
Objekt-Nr.: 9439


Ansicht Eingang

Ansicht Garten

Alternative: Ansicht Flachdach

Alternative: Ansicht Walmdach

Alternative: Ansicht Pultdach

Ansicht Wohn- & Essbereich

Grundriss Erdgeschoss

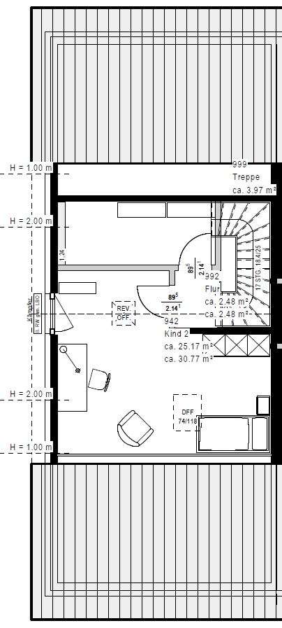
Grundriss Dachgeschoss









Preis:
419.900 €
Wohnfläche ca.:
182 m²
Zimmeranzahl:
4
Klassisch und stilvoll präsentiert sich dieses 2-geschossige Einfamilienhaus. Unter dem Satteldach vereinen sich moderne Architektur und höchster Wohnkomfort. Im Entrée trennt die offene Treppe WC und Hauswirtschaftsraum räumlich vom restlichen Wohnbereich ab. Auch das Büro findet hier seinen Platz. Der offene und helle Koch- und Wohnbereich wird durch ein freistehendes Wandelement gekonnt unterbrochen. Vom Wohn- und Esszimmer geht es zur großflächigen Eckterrasse. Im Obergeschoss ist die Elternsuite mit Bad und Ankleide dank kluger Raumaufteilung geschickt von den Kinderzimmern mit eigenem Dusch-WC abgegrenzt. Der Dachvorsprung an der Giebelseite setzt nicht nur gestalterische Akzente, sondern sorgt auch für einen geschützten Aufenthalt im Freien.
Gegen Aufpreis auch mit Flach-, Walm- oder Pultdach verfügbar.
Haustyp: Einfamilienhaus
Etagenanzahl: 2
Anzahl Schlafzimmer: 3
Anzahl Badezimmer: 2
Balkon: 1
Gäste-WC: ja
Baujahr: 2026
Bauphase: Haus in Planung (projektiert)
Zustand: Haus in Planung (projektiert)
Befeuerungsart: Wärmepumpe
Energietyp: Neubaustandard
Energieausweistyp: Bedarfsausweis
Energieeffizienz-Klasse: A+
Baujahr laut Energieausweis: 2026
Das könnte Ihnen auch gefallen
Maximaler Wohnkomfort auf drei Etagen

OKAL-Verkaufsleitung Mitte-West
Herr Edwin Weingarten
Musterhausstraße127
56218 Mülheim-Kärlich
Mobil: +49 177 4031056
Impressum

























































