Niddatal:
TRAUMHUAS AUF IHREM GRUNDSTÜCK EIN HAUS, EIN RAUMWUNDER, EIN LIEBLINGSORT
Objekt-Nr.: 9574

Ansicht Garten

Ansicht Garten

Ansicht Garten

Ansicht Garten

Ansicht Eingang

Ansicht Eingang

Ansicht Eingang

Ansicht Garten

Grundriss Erdgeschoss

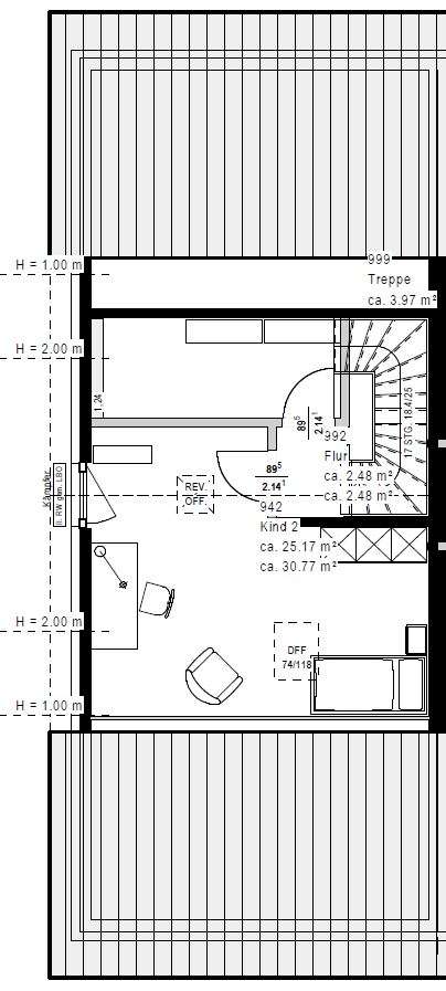
Grundriss Obergeschoss










Preis:
456.852 €
Wohnfläche ca.:
187 m²
Zimmeranzahl:
6
Großzügig, zeitlos-elegant und bis ins kleinste Detail durchdacht - das zeichnet unsere Stadtvilla 16 aus. Auf über 180 m², verteilt auf zwei Ebenen, bietet sie reichlich Raum zum Leben, Arbeiten und Entspannen. Der zentrale Treffpunkt für Familie und Freunde ist der großzügige Wohn-Ess-Koch-Bereich mit rund 50 m². Große Fensterfronten ermöglichen einen direkten Zugang zum Garten und sorgen für einen maximalen Lichteinfall. Besonders praktisch: Direkt an die Küche schließen sich eine Speisekammer und der geräumige Hauswirtschaftsraum an. Im Erdgeschoss befinden sich zudem ein komfortables Arbeitszimmer und ein Gäste-WC. Über den offenen Dielenbereich gelangt man ins Obergeschoss, wo sich der Rückzugsort für die Familienmitglieder befindet. Die Eltern genießen hier eine Wohlfühloase mit einem großen Schlafbereich, einem separaten Ankleidezimmer und einem angrenzenden Badezimmer mit Badewanne, Dusche und WC. Gegenüber befindet sich das Reich der Kinder, wo zwei geräumige Zimmer durch ein eigenes Bad voneinander getrennt sind. Abgerundet wird das Raumangebot durch einen praktischen Abstellraum.
Haustyp: Einfamilienhaus
Etagenanzahl: 2
Anzahl Schlafzimmer: 3
Anzahl Badezimmer: 2
Gäste-WC: ja
Qualität der Ausstattung: gehoben
Bauphase: Haus in Planung (projektiert)
Zustand: Haus in Planung (projektiert)
Das könnte Ihnen auch gefallen
OKAL-Verkaufsleitung Mitte-West
Herr Naveen Kumar-Khanna
Eichendorffanlage 3
63486 Bruchköbel
Mobil: +49 173 5707462









































