Worms:
Klein, aber oho: Bis ins letzte Detail liebevoll durchdacht!
Objekt-Nr.: PKK037DE09.2

Aktion Design 9.2

Ansicht Garten

Ansicht Garten

Ansicht Garten

Ansicht Eingang

Ansicht Eingang

Erdgeschoss

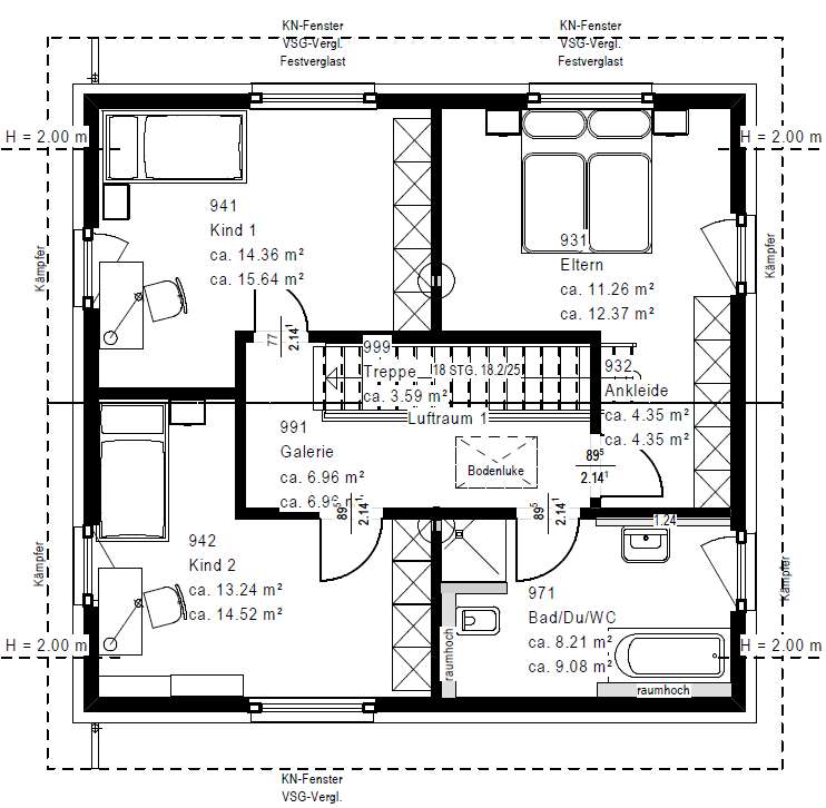
Erster Stock








Preis:
Preis auf Anfrage
Wohnfläche ca.:
106 m²
Zimmeranzahl:
5
Schlichte Eleganz gepaart mit einem durchdachten Raumkonzept - das zeichnet das Einfamilienhaus Design 9.2 aus. Die geradlinige Architektur wird noch unterstrichen durch die zweifarbige Fassadengestaltung, die dem Haus eine besondere Note verleiht und sie optisch noch einmal zusätzlich aufwertet. Geradlinig geht es auch im Inneren weiter. Herzstück im Erdgeschoss ist der große und lichtdurchflutete Wohn-Ess-Koch-Bereich mit direktem Zugang zum Garten. Dieser ist räumlich getrennt von Hauswirtschaftsraum und Gäste-WC. Von der geräumigen Diele, in der ausreichend Platz für eine Garderobe ist, führt eine Treppe ins Obergeschoss. Hier wird der Wohnraum perfekt ausgenutzt. Zwei Kinderzimmer, ein Schlafzimmer für die Eltern sowie ein geräumiges Bad mit Wanne, Dusche und WC bieten hier einen idealen Rückzugsort. Auf einer Wohnfläche von rund 107 m² ist hier ein gemütlicher und komfortabler Wohlfühlort für die ganze Familie entstanden.
► Ausgewiesener Kaufpreis gilt nur für das Haus. Die Kosten für das Baugrundstück, die Nebenkosten des Grundstückskaufs und die Nebenkosten für Erdbaumaßnahmen und Außenanlagen sind nicht im Preis enthalten.
Haustyp: Einfamilienhaus
Etagenanzahl: 2
Provisionspflichtig: nein
Anzahl Schlafzimmer: 3
Anzahl Badezimmer: 1
Gäste-WC: ja
Qualität der Ausstattung: gehoben
Bauphase: Haus in Planung (projektiert)
Zustand: Haus in Planung (projektiert)
Das könnte Ihnen auch gefallen
KLEIN, ABER OHO auf Ihrem Grundstück
geräumiges EFH für schmale Grundstücke
OKAL-Verkaufsleitung Mitte-West
Herr Klaus-Peter Kunzelmann
Xaver-Fuhr-Str.111
68163 Mannheim
Mobil: +49 172 6062565
67550 Worms
Rheinland-Pfalz





























