Ettringen:
Moderne Architektur mit höchstem Wohnkomfort!
Objekt-Nr.: 148981864

Pult 13

Grundriss-EG

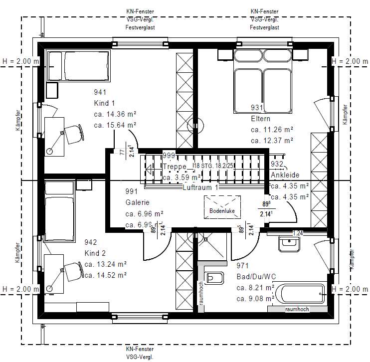
Grundriss-DG

Hausansicht

Sitzfenster

Esszimmer

Flur

Wohnzimmer

Arbeitszimmer

Badezimmer










Preis:
528.900 €
Wohnfläche ca.:
171,81 m²
Grundstück ca.:
512 m²
Zimmeranzahl:
6
Mondän und urban präsentiert sich das 2-geschossige Pultdachhaus.
Die exklusive Stadtvilla vereint moderne Architektur mit höchstem Wohnkomfort.
Im Entrée trennt die offene Treppe WC und HWR geschickt vom restlichen Wohnbereich ab.
Auch das Büro findet hier seinen Platz.
Der offene Koch- und Wohnbereich wird durch ein freistehendes Wandelement stilvoll unterbrochen.
Vom Wohn- und Esszimmer geht es zur großlächigen Eckterrasse.
Im Obergeschoss ist die Elternsuite mit Bad und Ankleide dank kluger Raumaufteilung geschickt von den Kinderzimmern mit eigenem Dusch-WC abgegrenzt.
Pult 13 besticht mit Rundum-Lichteinfall: bodentiefe Fenster, Übereckverglasung und zusätzliche Oberlichter schaffen lichtdurchflutete Räume.
OKAL-Spezial: Großes Sitzfenster im Wohnbereich aus Buche, Esche, Eiche oder Nuss gratis on top.
Gerne bauen wir für Sie diese einzigartige Immobilie auch einzugsfertig!
Haustyp: Einfamilienhaus
Provisionspflichtig: nein
Anzahl Schlafzimmer: 5
Anzahl Badezimmer: 1
Gäste-WC: ja
Qualität der Ausstattung: gehoben
Bauphase: Haus in Planung (projektiert)
Verfügbar ab: 2026
Das könnte Ihnen auch gefallen
Geförderter Neubau (KFN Ready)

OKAL-Verkaufsleitung Mitte-West
Herr Karl-Heinz Thelen
Elisabethstr.7
56564 Neuwied
Mobil: +49 171 1416371
56729 Ettringen
Mayen-Koblenz
Rheinland-Pfalz
















































