Kirchwald:
Reduktion trifft Funktion: Zeitlose Ästhetik im Bauhausstil
Objekt-Nr.: 148981843

Hauseingang

Bauhaus 20

Bad - Individualität

Wir verstehen unser Handwerk

ein Bad mal anders...

Küche und Essbereich

Rückansicht

Hausansichten

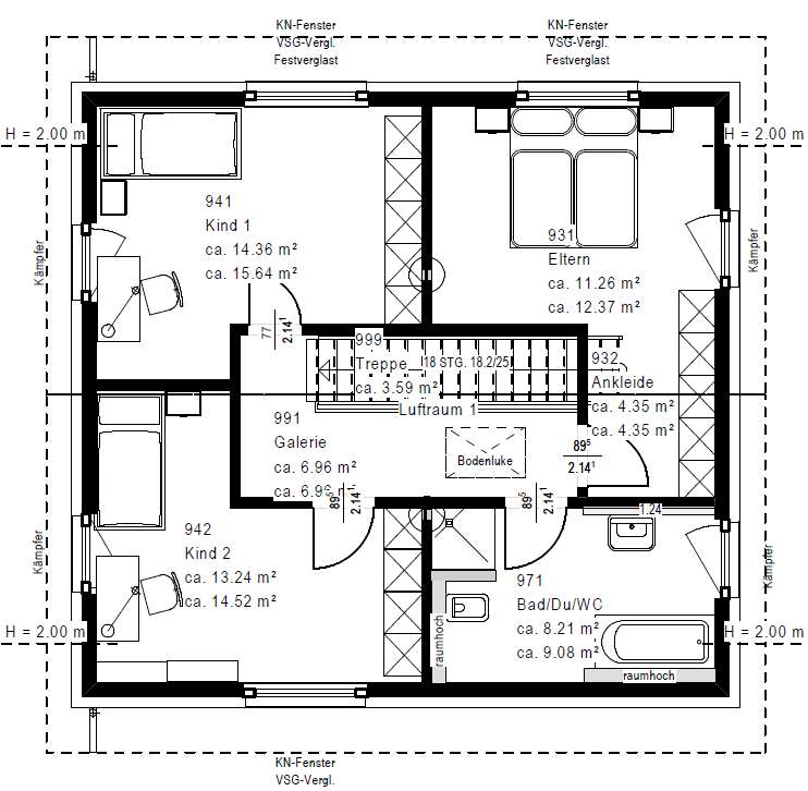
Grundriss EG

Grundriss DG










Preis:
563.900 €
Wohnfläche ca.:
162,84 m²
Grundstück ca.:
775 m²
Zimmeranzahl:
5
Die zweigeschossige Flachdachvilla symbolisiert die einzigartige Anmutung der Bauhaus-Modernen.
Die geradlinige Struktur wird durch die Fassadenrücksprünge und die asymmetrische Gestaltung architektonisch ergänzt.
Schlicht, hell und komfortabel geht es auch im Innenbereich weiter.
Das Erdgeschoss ist klar in Nutz- sowie Wohn- und Essbereich mit offener Küche unterteilt.
Clever und vor allem für kleine Grundstücke geeignet: der integrierte Carport. Die halbgewendelte Treppe führt in die obere Etage.
Hier ist das Elternzimmer mit großem Bad und Zugang zur eigenen Loggia vom Areal der Kinder mit Dusche/WC abgegrenzt.
Die Bereiche werden durch die lichte Galerie mit Zugang zu einer weiteren Loggia verbunden. Hier fühlt man sich zu Hause!
Haustyp: Einfamilienhaus
Provisionspflichtig: nein
Anzahl Schlafzimmer: 3
Anzahl Badezimmer: 1
Gäste-WC: ja
Qualität der Ausstattung: gehoben
Bauphase: Haus in Planung (projektiert)
Verfügbar ab: 2026
Das könnte Ihnen auch gefallen
Geförderter Neubau (KFN Ready)

OKAL-Verkaufsleitung Mitte-West
Herr Karl-Heinz Thelen
Elisabethstr.7
56564 Neuwied
Mobil: +49 171 1416371
56729 Kirchwald
Mayen-Koblenz
Rheinland-Pfalz











































