Simmern:
GEHOBENES DOPPELHAUS AUF 2,5 ETAGEN
Objekt-Nr.: HERBST VORLAGE! ZweiRaum 11

Ansicht Garten

Ansicht Garten

Ansicht Garten

Ansicht Garten

Ansicht Garten

Ansicht Eingang

Ansicht Eingang

Ansicht Eingang


Grundriss Erdgeschoss

Grundriss Obergeschoss

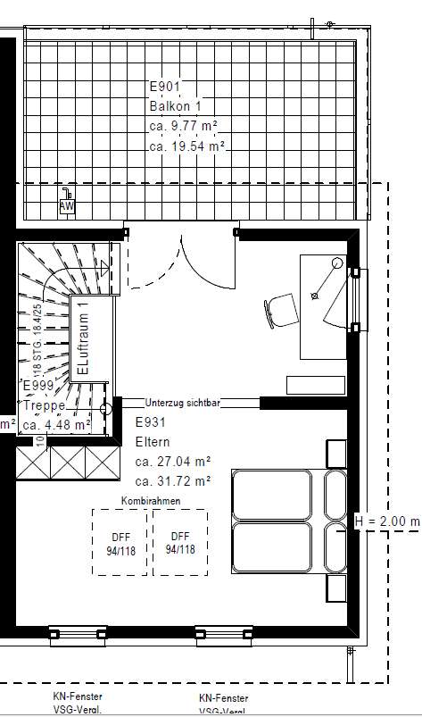
Grundriss Dachgeschoss












Preis:
Preis auf Anfrage
Wohnfläche ca.:
310,50 m²
Grundstück ca.:
600 m²
Zimmeranzahl:
10
Das 2 ½-geschossige Raumwunder beeindruckt durch eine großzügige Raumaufteilung über drei Etagen. Wohnen und Kochen, Kinderzimmer und Bad, Elternbereich und Büro - jeder Bereich hat seine eigene Etage. Die Grundrisse sind spiegelbildlich und identisch. Die Bewohner sorgen für Individualität und persönlichen Stil. Alle Räume zeichnen sich durch ihre Größe und Helligkeit aus. Unter dem leicht geneigten Pultdach bietet das Dachgeschoss eine komfortable Kniestockhöhe von 1,70 m. Ein absolutes Highlight sind die großzügigen Dachterrassen, die ungestörte Sonnenstunden im Freien ermöglichen.
Haustyp: Zweifamilienhaus
Etagenanzahl: 3
Anzahl Schlafzimmer: 6
Anzahl Badezimmer: 2
Terrasse: 2
Gäste-WC: ja
Als Ferienhaus geeignet: ja
Qualität der Ausstattung: gehoben
Bauphase: Haus in Planung (projektiert)
Das könnte Ihnen auch gefallen
MODERN UND KOMFORTABEL WOHNEN UNTER EINEM DACH
EIN HAUS MIT VIELEN OPTIONEN UND HIGHLIGHTS
Wohnen auf 3 Etagen




























